• Acheter De l'immo pro
  • Louer
Dans un rayon de
Budget
Mini
Maxi

    Faites estimer votre bien par un professionnel

    3 annonces de ventes professionnelles sur Rue

    Trier par
    Les plus récentes
    • Prix croissant
    • Prix décroissant
    • Les moins récentes
    • Les plus récentes
    • Surface croissant
    • Surface décroissant
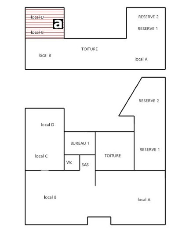
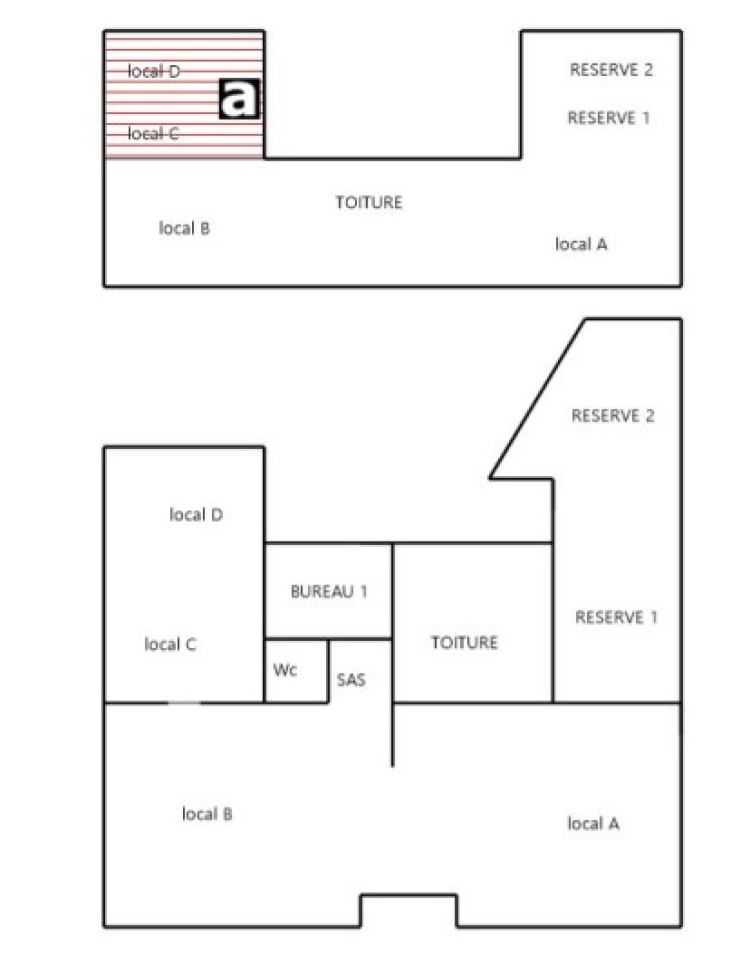
    Rue (80120)

    Murs et fonds de commerce 461 m²

    685 000 € TTC *
    Rue (80120)

    Fonds de commerce 253 m²

    2
    254 400 €
    Rue (80120)

    Murs commerciaux 253 m²

    2
    273 000 € TTC *

    * TTC : Toutes Taxes Comprises