Page suivante
Page précédente
Rue (80120)

Murs commerciaux 253 m²

2
273 000 € TTC *
Réf V130000762

Local commercial à vendre en plein centre-ville de Rue, idéalement situé face à un parking et à proximité de la Baie de Somme.

Actuellement exploité en Maison de la Presse avec activités annexes (FDJ, papeterie, jouets, location de vélos). Possibilité de conserver l’activité ou de transformer le bien en habitation (sous réserve des autorisations nécessaires).

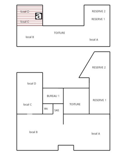
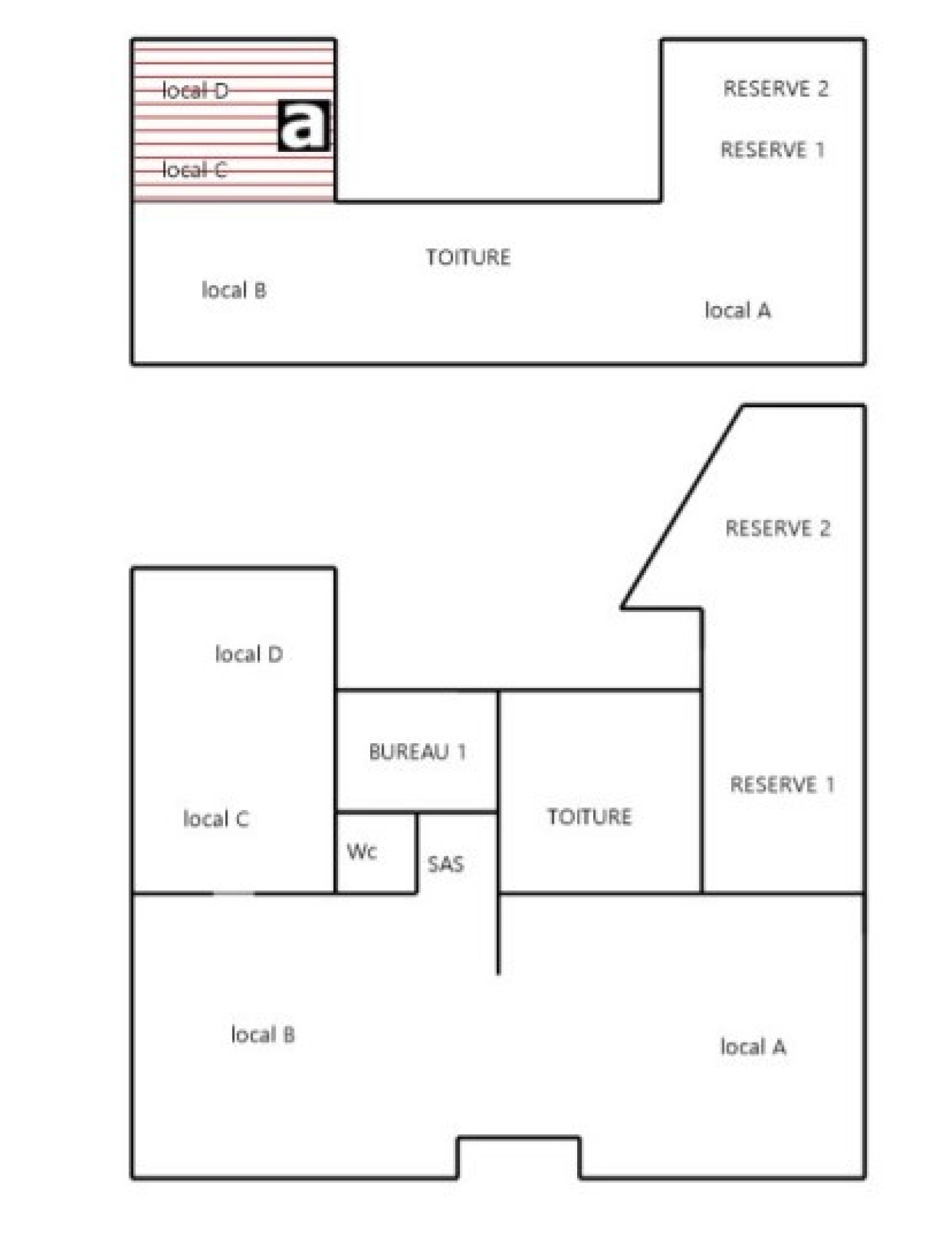
Le bien comprend :
Surface commerciale de 135 m², bureau de 11 m², cuisine de 12 m², réserve de 20 m², WC de 1,5 m², deux cours de 25 m² et 29 m², ainsi qu’un garage de 20 m².

Superficie totale : 253,5 m².

Le loyer est de 1250 € HT par mois, soit 1500 € TTC. Taxe foncière prise en charge à 100% par le locataire.

Emplacement stratégique en centre-ville, secteur dynamique et touristique. Idéal investisseur ou commerçant.

Prix de vente : 273 000 € FAI.

A visiter sans attendre avec L'Agence des Remparts, contactez Romain Vandenberghe votre conseiller immobilier.

Bilan énergétique

Diagnostics énergetiques
A propos de ce bien Caractéristiques de ce bien
  • Surface 253 m²
  • construit en 1948
  • Chauffage autre : chaudière (gaz)

Financier

Informations financières
Prix de vente TTC honoraires inclus 273 000 €
Prix net vendeur 260 000 €
Honoraires TTC à la charge acquéreur 5 %

Autour du bien

Découvrez le quartier
L'Agence des Remparts Agence

* TTC : Toutes Taxes Comprises