Page suivante
Page précédente
Merlimont (62155)

Maison 6 pièce(s) 5 chambre(s) 169 m²

2
2
595 m²
499 000 €
Réf 694MB

Idéalement située entre Merlimont Village et Merlimont Plage, dans une rue calme à proximité de la forêt, découvrez cette maison individuelle d’environ 169 m² habitables offrant de beaux volumes et un cadre de vie privilégié.

À seulement 5 minutes de la plage et 2 minutes des commerces, cette propriété bénéficie d’un emplacement recherché, alliant tranquillité et proximité des commodités.

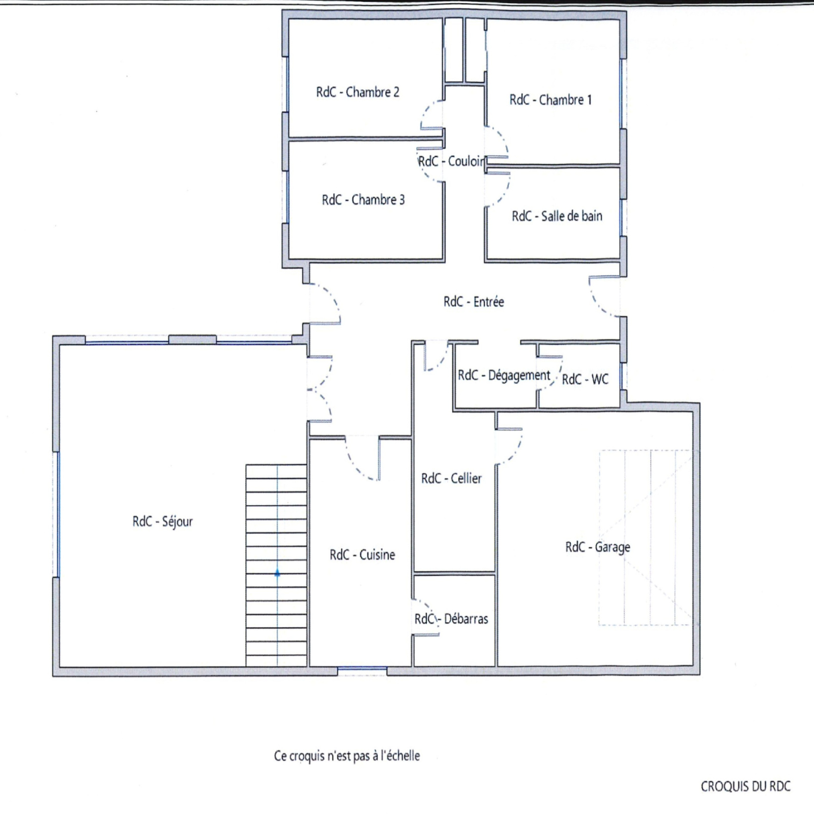
Au rez-de-chaussée

Une entrée dessert une belle pièce de vie lumineuse avec séjour cathédral, offrant une grande hauteur sous plafond et une cheminée qui apporte charme et convivialité.
Cet espace de vie s’ouvre sur le jardin et sa terrasse exposée plein sud, idéal pour profiter des beaux jours.

Vous trouverez également :

  • Trois chambres

  • Une cuisine indépendante aménagée et équipée

  • Un cellier attenant

  • Une salle de bains

  • Un WC séparé

  • Un garage avec accès direct à la maison

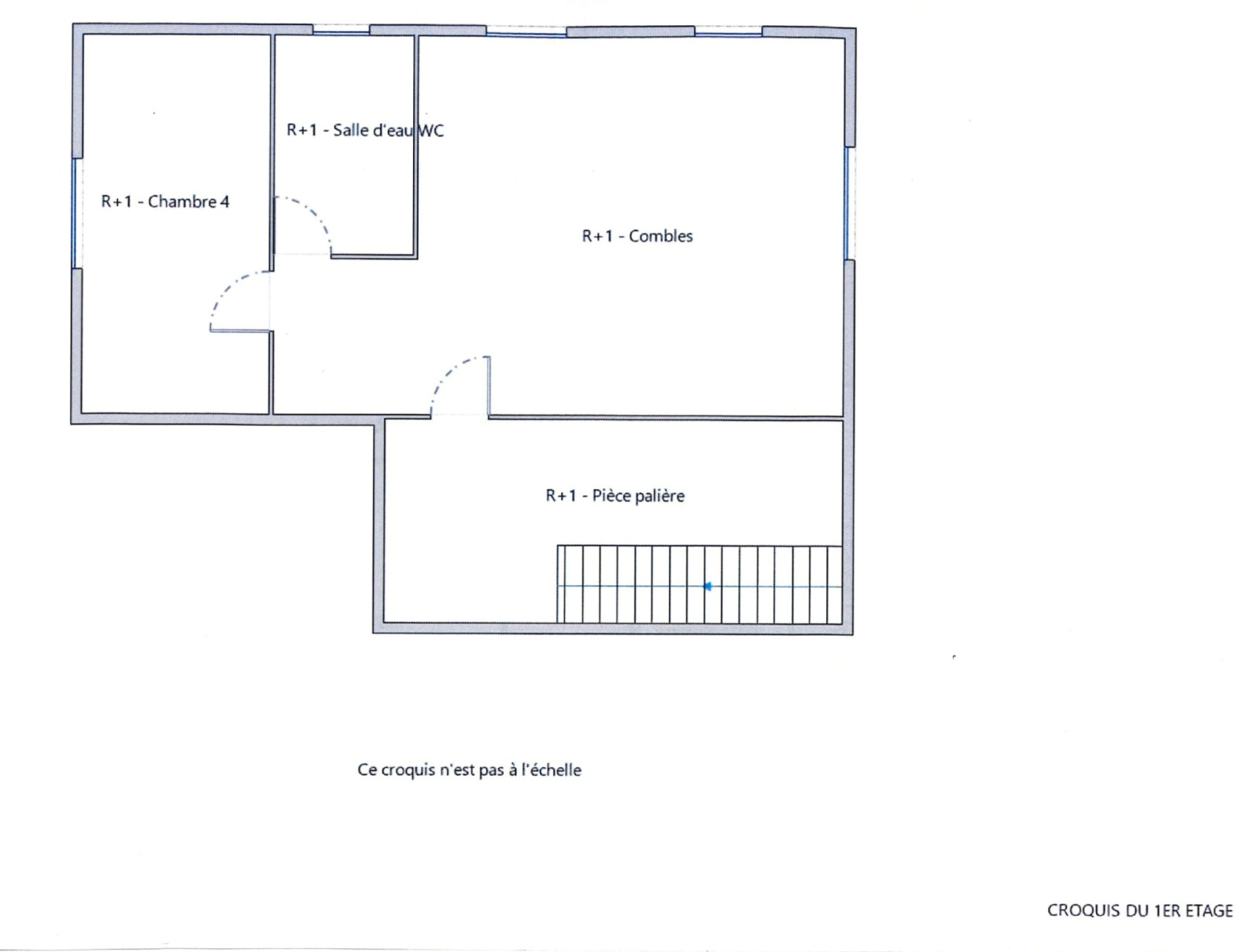
À l’étage

Une mezzanine ouverte sur le séjour dessert :

  • Une chambre spacieuse

  • Une salle d’eau avec WC

  • Une grande pièce polyvalente, idéale pour une chambre supplémentaire, un bureau, une salle de jeux ou un espace loisirs selon vos besoins.

Extérieurs

La maison est entourée d’un agréable jardin, offrant un cadre parfait pour les moments de détente en famille ou entre amis.

Les atouts

  • Emplacement privilégié : calme, proche forêt, plage et commerces

  • Beaux volumes et luminosité

  • 5 chambres et nombreux espaces modulables

  • Idéale en résidence principale ou secondaire

DPE : Classe Énergie E (284 kWh/m²/an)

GES : Classe Climat B (9 kg CO?/m²/an)

Contactez-nous au 03 21 94 60 65 pour plus d'informations 

Les informations sur les risques auxquels ce bien est exposé sont disponibles sur le site Géorisques : www.georisques.gouv.fr

 

Bilan énergétique

Diagnostics énergetiques
A propos de ce bien Caractéristiques de ce bien
  • Surface 169 m²
  • carrez 169 m²
  • terrain 595 m²
  • séjour 34 m²
  • 5 chambre(s)
  • 2 salle(s) de bain
  • 2 salle(s) d'eau
  • construit en 1985
  • cuisine séparée (équipée)
  • 1 garage(s)
  • 1 parking(s)
  • exposition Sud-Est
  • 1 niveau(x)
  • terrasse
  • quartier A 10 mins du TOUQUET, CALME, MERLIMONT

Financier

Informations financières
Prix de vente honoraires TTC inclus 499 000 €
Taxe foncière annuelle 1 496 €

Autour du bien

Découvrez le quartier

Simulation

Calcul des mensualités
* Champs obligatoires
Agence du Golf Agence