Page suivante
Page précédente
Montreuil-sur-Mer (62170)

Maison 6 pièce(s) 4 chambre(s) 161.6 m²

1
1931 m²
1
222 600 €
Réf VAP338

Située à Beaumerie Saint Martin secteur recherché, à seulement 5 minutes de Montreuil-sur-Mer, L’Agence des Remparts vous propose à la vente cette maison de plain-pied d’environ 160 m² habitables, offrant un beau potentiel de rénovation.

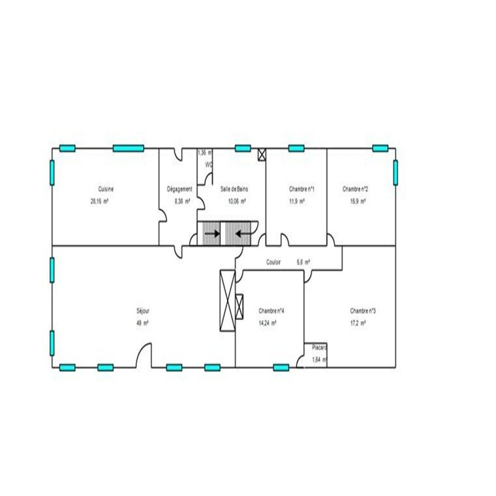
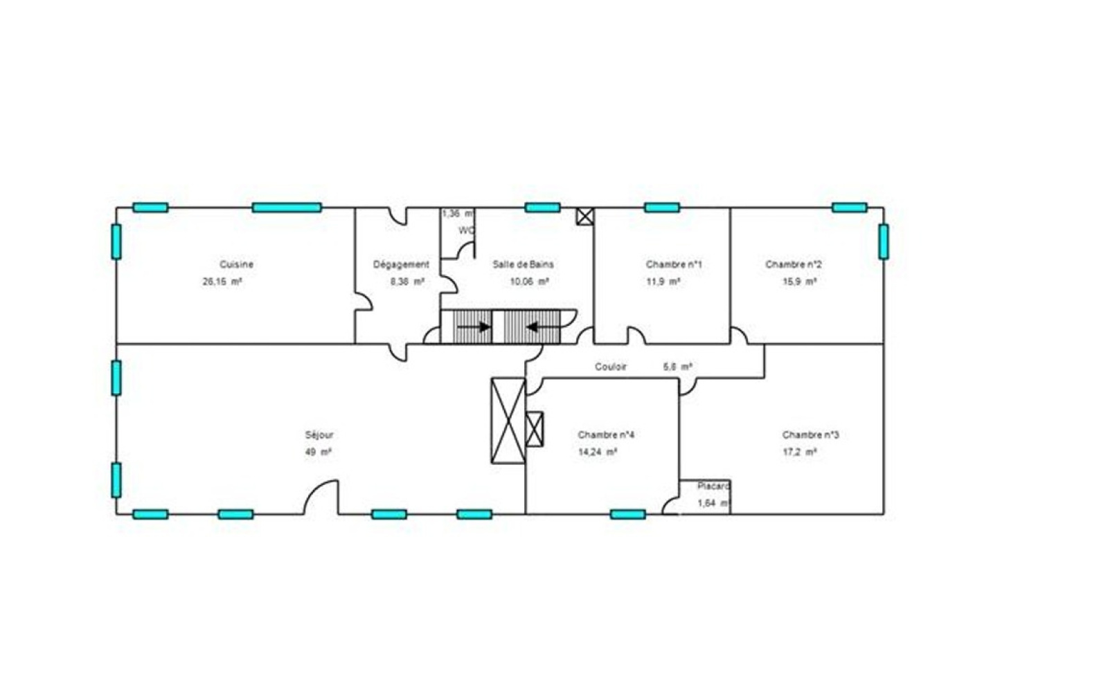
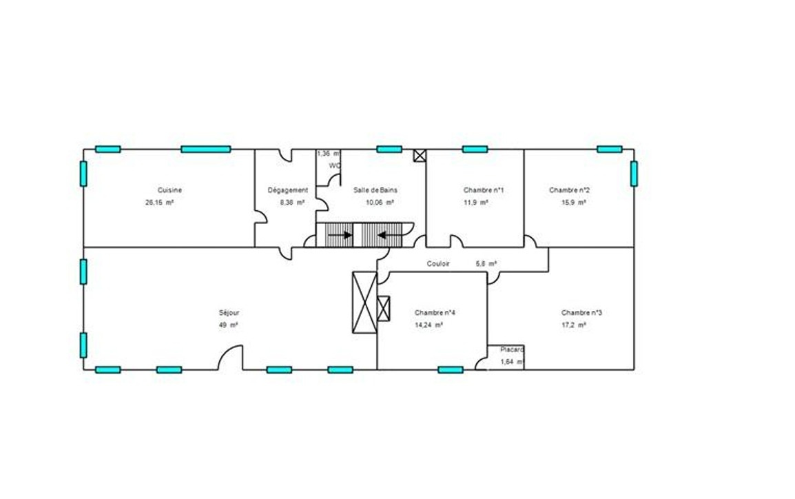
Dès l’entrée, vous découvrirez un vaste séjour lumineux de 49 m², agrémenté d’une cheminée à foyer ouvert, idéal pour partager des moments conviviaux. Une grande cuisine indépendante de 26 m² complète cet espace de vie, avec la possibilité d’ouverture sur le séjour pour créer une pièce de vie encore plus spacieuse et moderne.

L’espace nuit se compose de quatre chambres aux volumes généreux (12 m², 14,5 m², 16 m² et 17 m²), dont deux disposent déjà d’un point d’eau. Une salle de bain ainsi qu’un WC indépendant viennent compléter l’ensemble.

Côté annexes, vous bénéficierez d’une cave d’environ 40 m² ainsi que d’un grenier accessible, offrant de belles solutions de stockage.

À l’extérieur, vous profiterez d’un agréable jardin arboré de 1 931 m², sans vis-à-vis, idéal pour les amoureux de calme et de nature. Une dépendance d’environ 60 m² au sol vient compléter le bien, comprenant un espace garage/atelier ainsi qu’un étage partiellement aménagé sur dalle béton.

Un véritable atout : cette dépendance offre un beau potentiel d’aménagement en gîte, location saisonnière ou espace indépendant.

Performance énergétique :
Logement classé F (DPE) – F (GES)

Une maison à rénover, idéale pour un projet familial ou un investissement, offrant de belles possibilités d’aménagement dans un environnement privilégié.

À visiter sans tarder avec L’Agence des Remparts
Contactez Aurélien Piquet pour plus d’informations ou organiser une visite.

Bilan énergétique

Diagnostics énergetiques
A propos de ce bien Caractéristiques de ce bien
  • Surface 161,60 m²
  • carrez 161,60 m²
  • terrain 1 931 m²
  • séjour 49 m²
  • 4 chambre(s)
  • 1 salle(s) de bain
  • construit en 1900
  • cuisine séparée (équipée)
  • Chauffage central : chaudière (fioul)
  • Chauffage individuel : cheminée (bois)
  • 1 garage(s)
  • 1 niveau(x)
  • 1er étage
  • cave
  • arboré
  • piscinable

Financier

Informations financières
Prix de vente honoraires TTC inclus 222 600 €
Prix net vendeur 210 000 €
Prix de vente honoraires TTC exclus 210 000 €
Honoraires TTC à la charge acquéreur 6 %
Taxe foncière annuelle 946 €

Autour du bien

Découvrez le quartier

Simulation

Calcul des mensualités
* Champs obligatoires
L'Agence des Remparts Agence