Page suivante
Page précédente
Montreuil-sur-Mer (62170)

Maison 8 pièce(s) 5 chambre(s) 215 m²

1
2
6236 m²
649 500 €
Réf VAP301

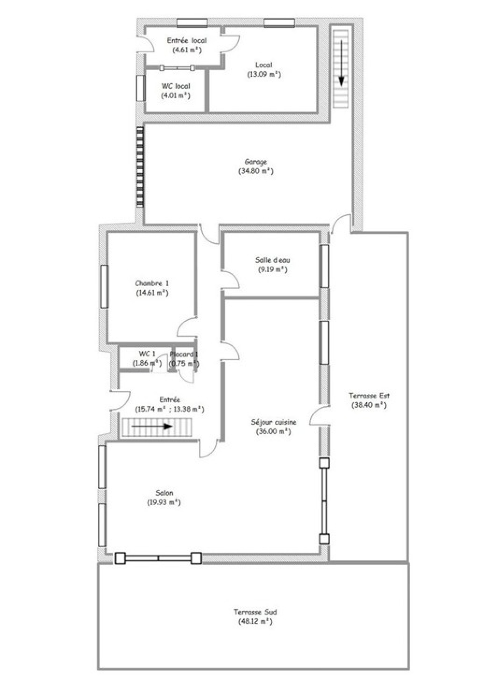
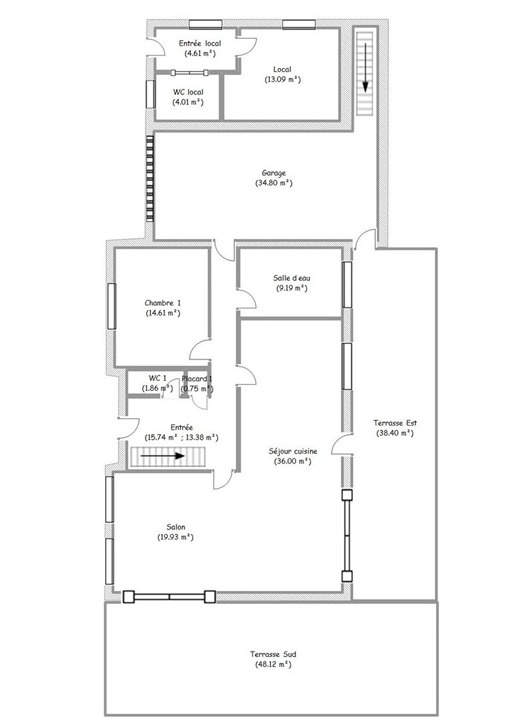
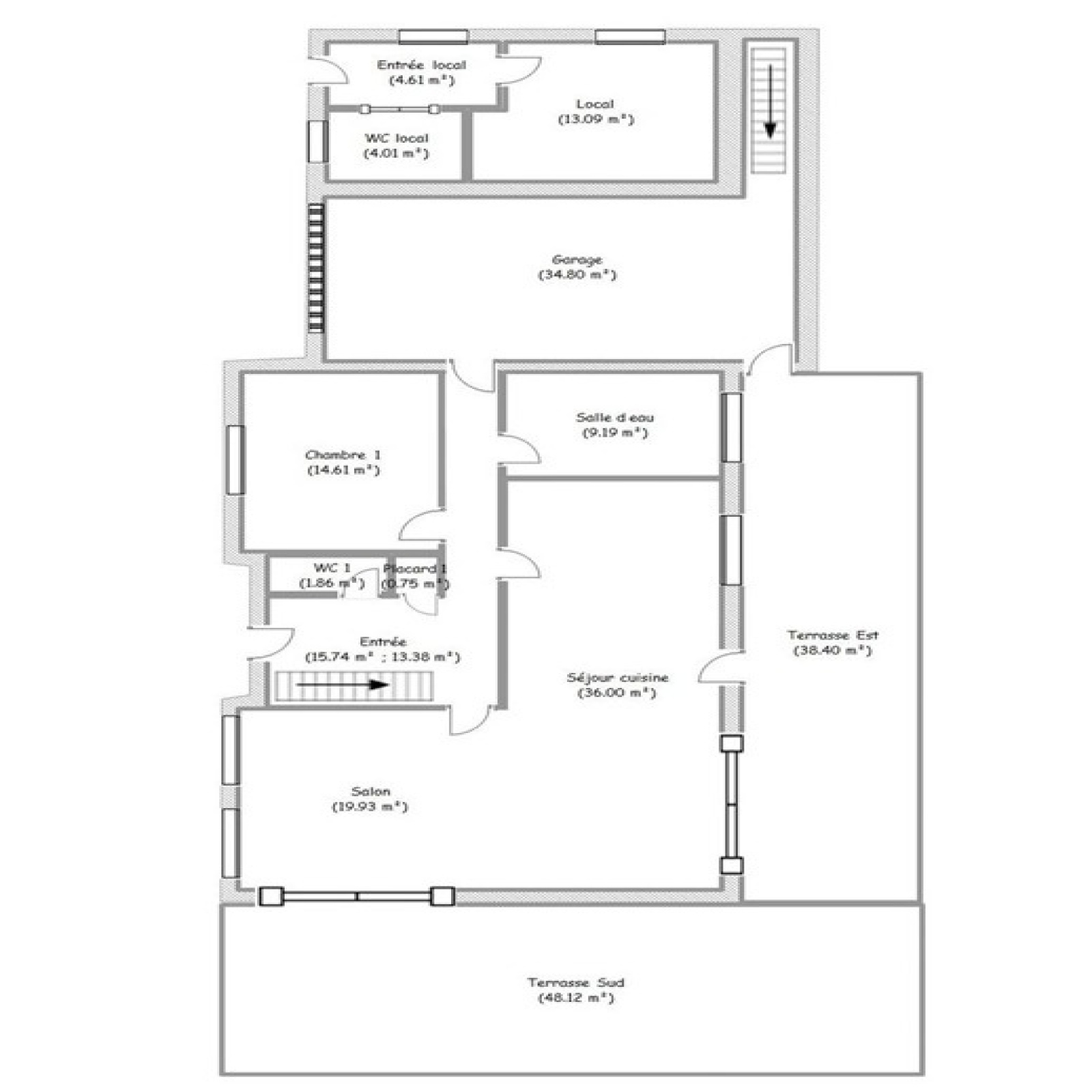
À seulement 3 minutes de Montreuil-sur-Mer, découvrez cette vaste maison traditionnelle construite en 1998, parfaitement entretenue et décorée avec soin dans un style contemporain. Elle offre 160 m² habitables, complétés par plusieurs espaces annexes à fort potentiel :

- Un local professionnel de 25 m² (bureau ou cabinet médical comme actuellement - normes PMR),

- Un studio indépendant de 35 m² récemment réaménagé, (actuellement loué en meublé)

- Un sous-sol complet de plus de 160 m²,

- Un garage de 34 m²,

- Terrasses, jardin et pâture (environ 4000 m²),

Le tout implanté sur un terrain de 6 236 m² arboré, fleuri et entièrement clos (hormis la prairie) avec portail motorisé.


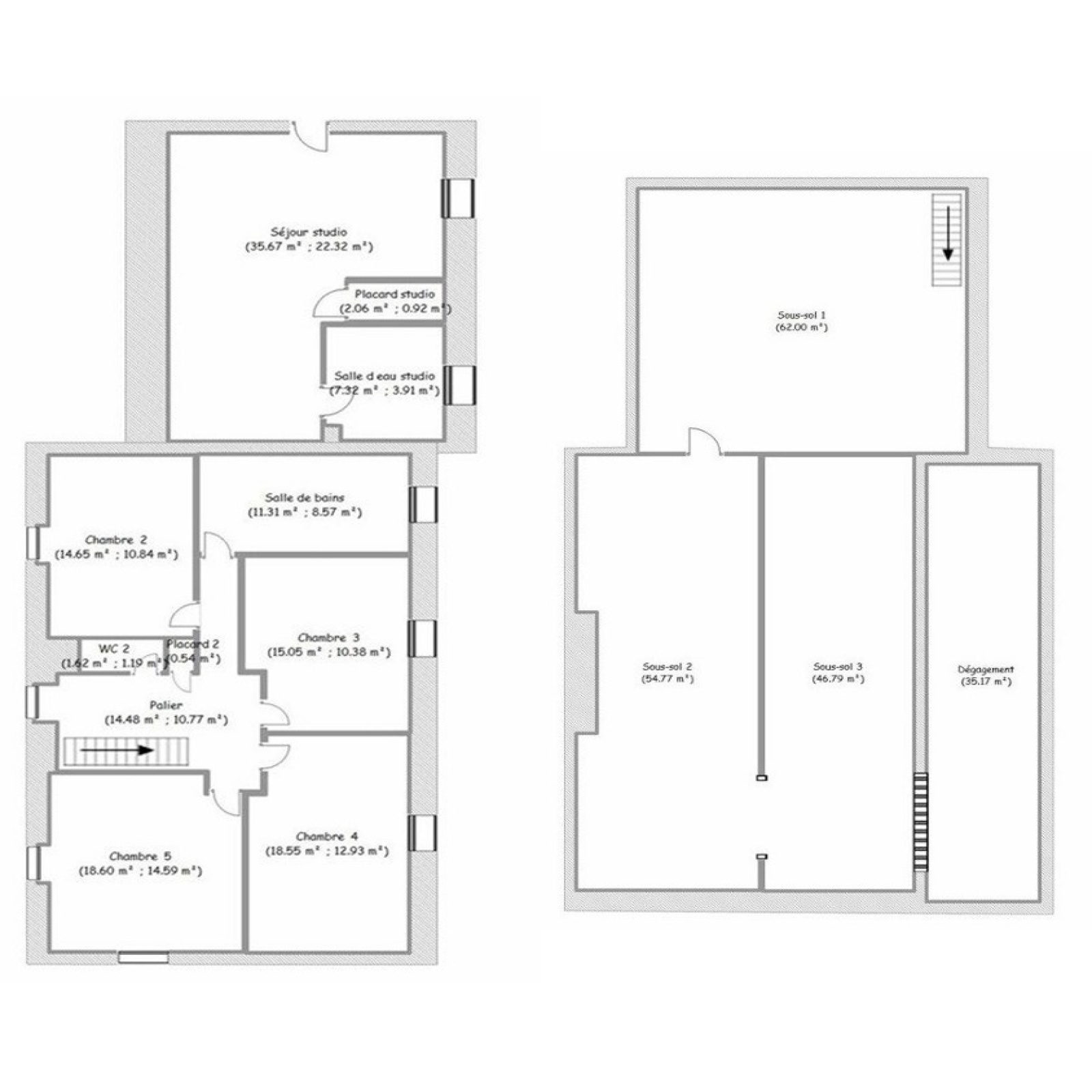
Rez-de-chaussée : une vie de plain-pied possible,

L'entrée, avec placards, dessert un bel espace de vie de 55 m², traversant et baigné de lumière grâce à sa triple exposition. La cuisine ouverte, entièrement aménagée et équipée, a été refaite en 2022.

Une chambre avec dressing et une salle de douche permettent une autonomie totale de plain-pied.

De larges baies offrent un accès direct à deux spacieuses terrasses orientées Est et Sud, avec une vue dégagée sur le jardin, la pâture et les collines environnantes.

Vous apprécierez le magnifique parquet massif à point de Hongrie, le système de chauffage via une pompe à chaleur air/eau offrant une performance énergétique à faible coût (DPE : A), les menuiseries PVC double vitrage avec volets roulants motorisés...

Étage :

Le palier dessert 4 grandes chambres, une salle de bain et des toilettes indépendants.


Sous-sol & garage : volumes rares


Attenant à la maison, le garage 2 voitures avec porte motorisée intègre l'espace buanderie et mène directement au sous-sol complet : plus de 160 m² répartis en plusieurs pièces techniques et offrant la possibilité de stationner 4 véhicules supplémentaires grâce à une double porte donnant sur le parvis arrière (allée bitumée depuis l'entrée).


Annexes à fort rendement locatif :

- Bureau indépendant de 25 m² (normes PMR), composé d'une salle de consultation, d'un espace attente et d'un point d'eau/ WC. Stationnement facile dans la propriété (Valeur locative actuelle : 850 € / mois).

- Studio indépendant de 35 m², avec kitchenette, coin nuit, salle de douche et WC (loué actuellement en meublé : 600 € / mois).


En résumé :

Aux portes de Montreuil-sur-Mer, cette propriété offre de superbes volumes, une luminosité exceptionnelle, une vie de plain-pied, 5 chambres, et de réelles opportunités d'exploitation : activité professionnelle clé en main, location du studio, ou accueil familial. Le tout dans un environnement calme, avec un accès et un stationnement très facile.


À visiter sans attendre avec L'Agence des Remparts.

Bilan énergétique

Diagnostics énergetiques
A propos de ce bien Caractéristiques de ce bien
  • Surface 215 m²
  • carrez 215 m²
  • terrain 6 236 m²
  • séjour 55 m²
  • 5 chambre(s)
  • 1 salle(s) de bain
  • 2 salle(s) d'eau
  • construit en 1998
  • cuisine américaine (équipée)
  • Chauffage central : trad_type_chauff_air_eau (pompe à chaleur)
  • 2 garage(s)
  • exposition Sud
  • 2 niveau(x)
  • 2ème étage
  • vue Jardin - Terrasse
  • cave
  • terrasse
  • arboré

Financier

Informations financières
Prix de vente honoraires TTC inclus 649 500 €
Prix net vendeur 625 000 €
Prix de vente honoraires TTC exclus 625 000 €
Honoraires TTC à la charge acquéreur 3,92 %
Taxe foncière annuelle 3 150 €

Autour du bien

Découvrez le quartier

Simulation

Calcul des mensualités
* Champs obligatoires
L'Agence des Remparts Agence