Page suivante
Page précédente
Montreuil-sur-Mer (62170)

Appartement 3 pièce(s) 2 chambre(s) 74.42 m²

1
1
324 400 €
Réf AP261
En ville haute de Montreuil sur Mer, L'Agence des Remparts vous propose à la vente un appartement en rez-de-chaussée de 74 m², dans un immeuble sécurisé, récent (4 ans) et en copropriété, se composant:
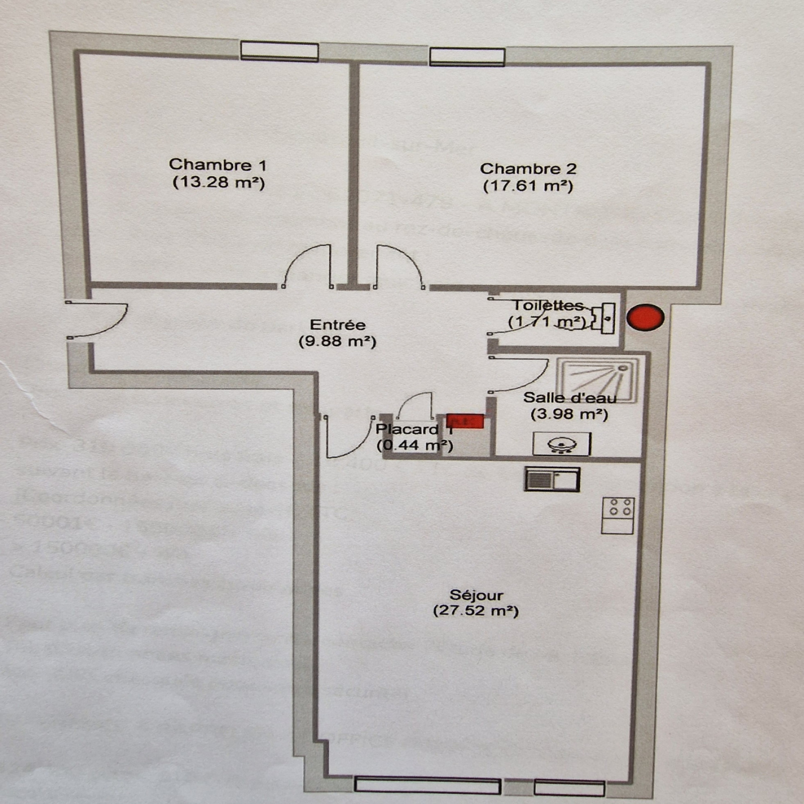
- Un spacieux hall d'entrée avec placard.
- Une cuisine meublée & équipée ouverte sur le séjour (de 27 m²).
- Une salle d'eau.
- Un WC séparé avec placard.
- Deux chambres avec chacune une armoire (13 & 17 m²).
Appartement en rez de jardin offrant le privilège d'une terrasse et d'un jardinet.
Vous bénéficiez également d'une place de parking privative.
A proximité de toutes commodités à pied et à deux pas de la Citadelle ainsi que des remparts.

À visiter sans attendre avec L'Agence des Remparts, contactez Aurélien Piquet votre agent immobilier, disponible au O6 64 47 59 16, joignable 7 jours/7.

Bilan énergétique

Diagnostics énergetiques
A propos de ce bien Caractéristiques de ce bien
  • Surface 74,42 m²
  • carrez 74,42 m²
  • séjour 27,52 m²
  • 2 chambre(s)
  • 1 salle(s) d'eau
  • construit en 2020
  • cuisine américaine (équipée)
  • Chauffage individuel : chaudière (gaz de ville)
  • 1 côté(s) mitoyen(s)
  • 1 niveau(x)
  • 3 étage(s)
  • terrasse
  • visiophone
  • interphone

Info copro

Copropriété
  • Copropriété Oui
  • Lot n° 11 & 31
  • Nombre de lots 51
  • Quote part annuelle des charges 1 200 €
  • Plan de sauvegarde Non
  • Statut du syndic Pas de procédure en cours

Financier

Informations financières
Prix de vente honoraires TTC inclus 324 400 €
Prix net vendeur 310 000 €
Prix de vente honoraires TTC exclus 310 000 €
Honoraires TTC à la charge acquéreur 4,65 %
Taxe foncière annuelle 1 200 €

Autour du bien

Découvrez le quartier

Simulation

Calcul des mensualités
* Champs obligatoires
L'Agence des Remparts Agence