Page suivante
Page précédente
Roussent (62870)

Maison 6 pièce(s) 4 chambre(s) 125.82 m²

1
1
1306 m²
294 000 €
Réf VAP341

En exclusivité L'Agence des Remparts vous propose à la vente cette maison individuelle construite en 2012 par les propriétaires actuels, offrant une surface habitable de 125 m², implantée sur un terrain de 1 306 m² situé sur la commune de Roussent.

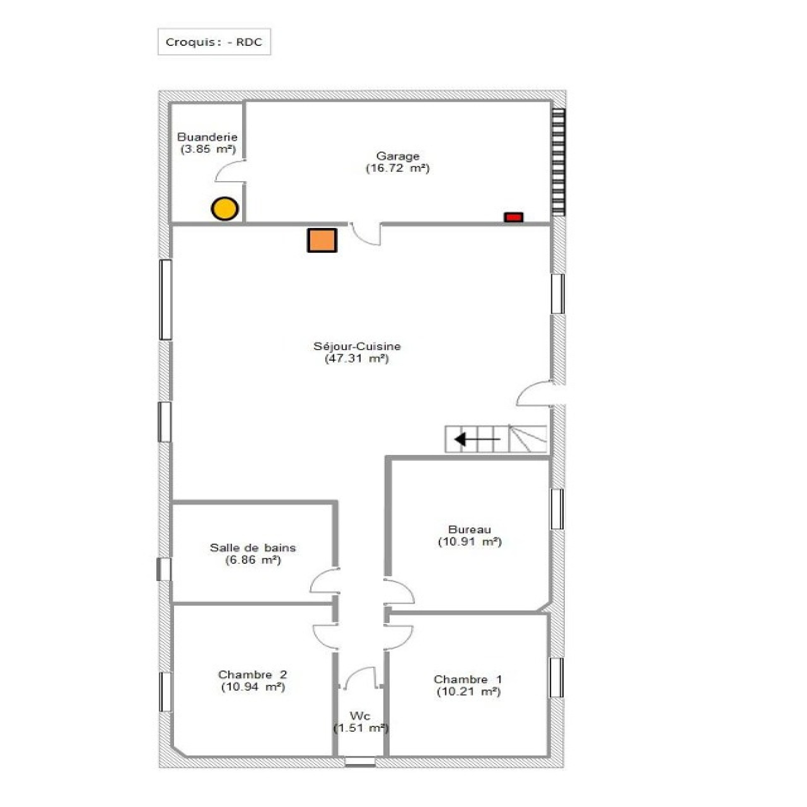
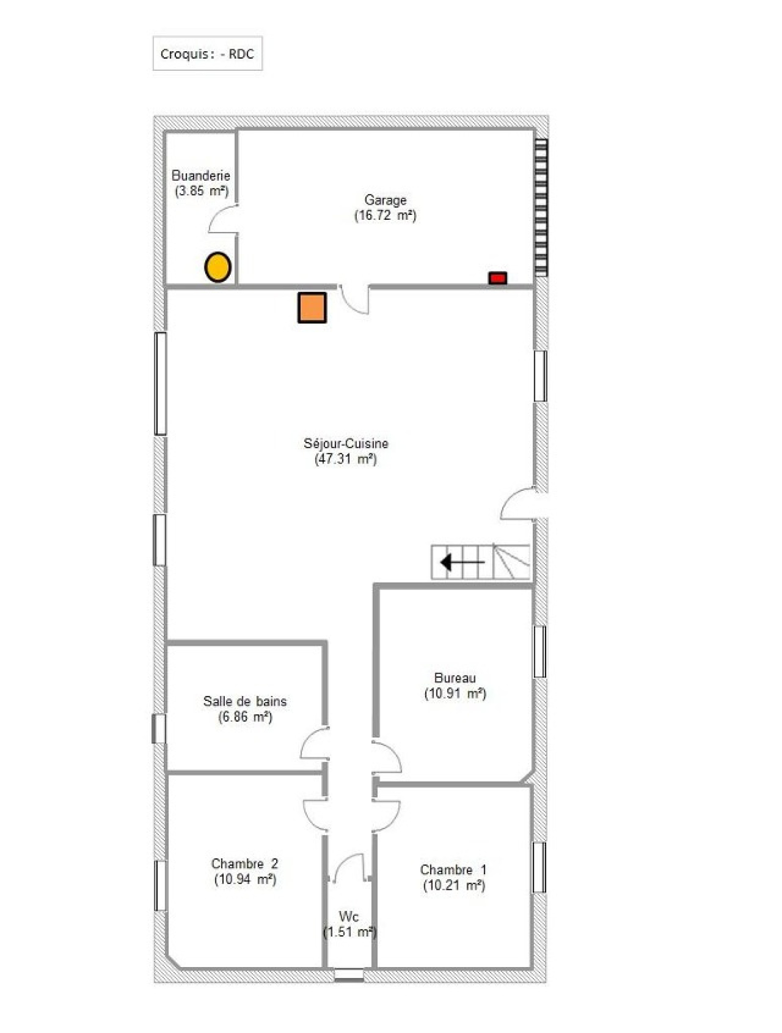
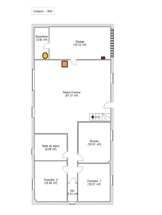
Cette habitation se compose, au rez-de-chaussée, d’une entrée ouvrant sur un vaste espace de vie lumineux comprenant un séjour avec cuisine ouverte, entièrement aménagée et équipée, pour une surface totale de 47 m². Un couloir dessert ensuite trois chambres, un WC indépendant ainsi qu’une salle de bains équipée d’une baignoire, d’une douche et d’une vasque.

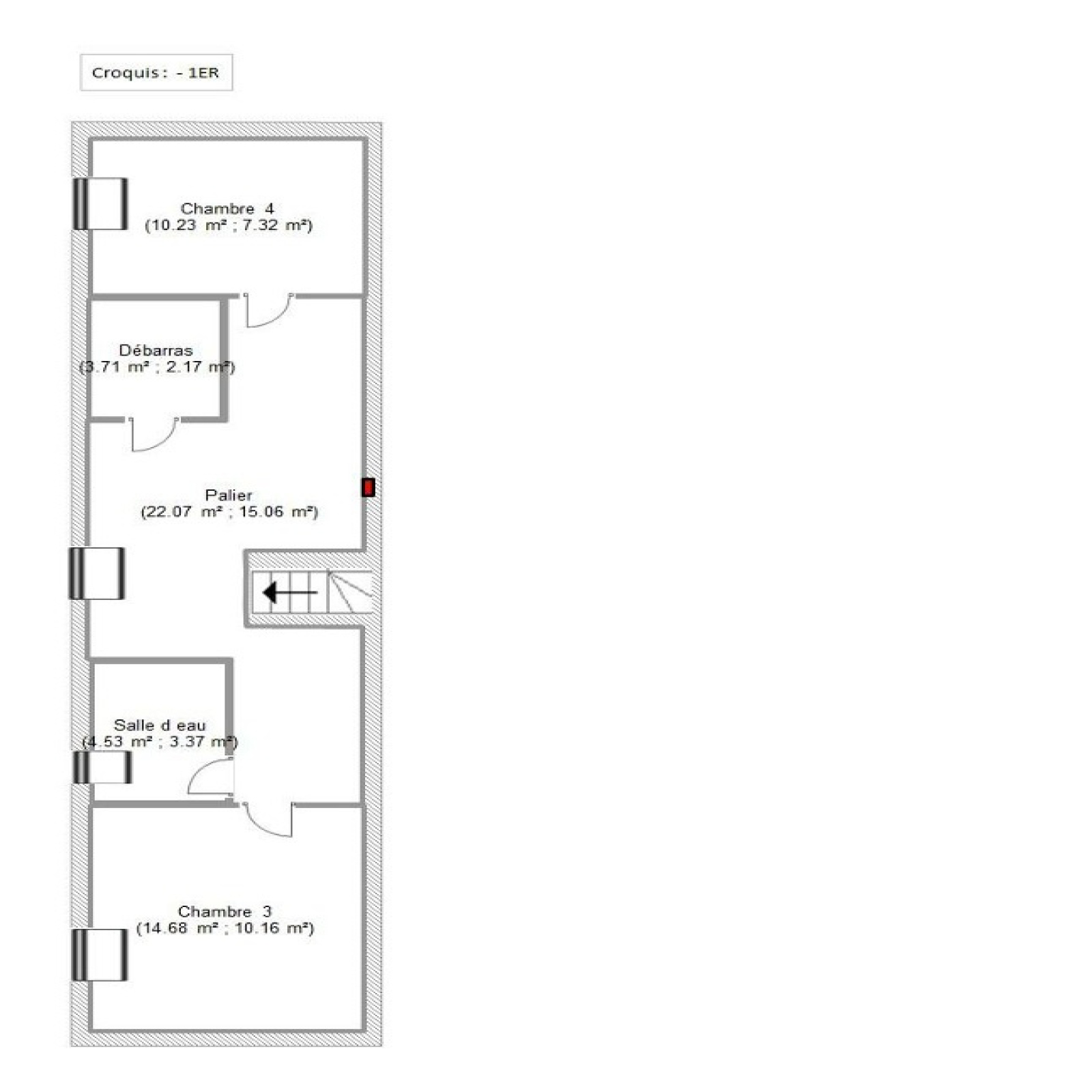
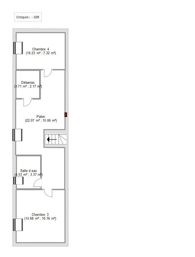
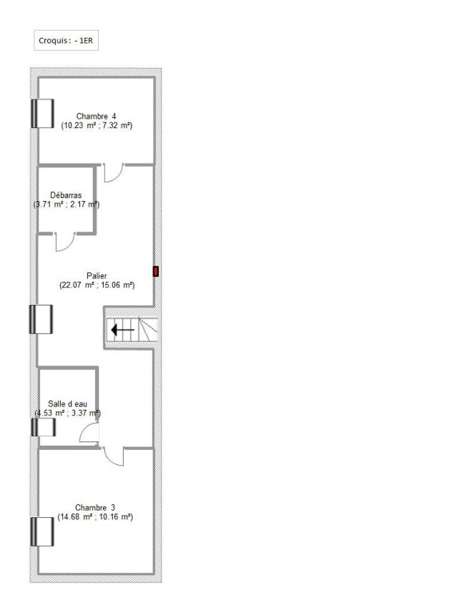
À l’étage, un grand palier distribue une pièce de débarras, une chambre, une salle d’eau avec vasque, douche et WC, ainsi qu’une pièce à usage de bureau ou de chambre d’appoint.

Le bien dispose également d’un cellier faisant office de laverie et d’un garage d’une surface de 16,70 m², dans lequel se trouvent l’accès au vide sanitaire.

Sur le plan technique, les menuiseries sont en PVC double vitrage, équipées de volets roulants manuels, avec motorisation pour la baie vitrée. Le chauffage est assuré par un poêle à granulés complété par des radiateurs électriques. La production d’eau chaude est assurée par un cumulus électrique. L’assainissement est individuel, de type fosse toutes eaux avec épandage, en conformité.

Le terrain, entièrement clos par des panneaux grillagés semi-rigides sur soubassement béton, comprend une vaste terrasse bétonnée de 87 m².

Idéalement située à environ 15 minutes de Montreuil et du littoral, dans un environnement au calme.

À visiter sans attendre et uniquement avec L'Agence des Remparts, demandez Aurélien Piquet votre agent immobilier.

Bilan énergétique

Diagnostics énergetiques
A propos de ce bien Caractéristiques de ce bien
  • Surface 125,82 m²
  • carrez 125,82 m²
  • terrain 1 306 m²
  • séjour 47,30 m²
  • 4 chambre(s)
  • 1 salle(s) de bain
  • 1 salle(s) d'eau
  • construit en 2012
  • cuisine américaine (équipée)
  • 1 garage(s)
  • 2 niveau(x)
  • terrasse

Financier

Informations financières
Prix de vente honoraires TTC inclus 294 000 €
Prix net vendeur 280 000 €
Prix de vente honoraires TTC exclus 280 000 €
Honoraires TTC à la charge acquéreur 5 %
Taxe foncière annuelle 750 €

Autour du bien

Découvrez le quartier

Simulation

Calcul des mensualités
* Champs obligatoires
L'Agence des Remparts Agence