Page suivante
Page précédente
Écuires (62170)

Maison 5 pièce(s) 3 chambre(s) 102.85 m²

2
136 m²
2
265 000 €
Réf AP334

Maison entièrement rénovée en 2022 d'une surface habitable de 102,85 m², idéalement située aux portes de Montreuil dans un secteur recherché.

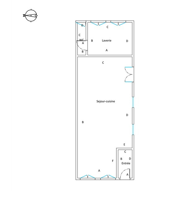
Elle se compose au rez-de-chaussée d'une entrée desservant un spacieux et lumineux séjour de 43 m² avec cuisine ouverte meublée et équipée, offrant un bel espace de vie convivial, ainsi qu'un cellier et un WC indépendant.

À l'étage, un palier distribue une chambre parentale avec sa salle d'eau privative, une seconde chambre, une troisième pièce actuellement aménagée en dressing mais pouvant être facilement transformée en chambre, ainsi qu'une seconde salle d'eau. La maison dispose également d'une cave.

À l'extérieur, vous profiterez d'une cour fermée exposée plein sud.

Côté prestations, les menuiseries sont en PVC double vitrage avec volets roulants motorisés. Le chauffage est assuré par un poêle à pellets récent complété par des radiateurs électriques. Le bien est raccordé au tout-à-l'égout. Maison clé en main, aucun travaux à prévoir.

À visiter sans attendre avec L'Agence des Remparts, contactez Aurélien Piquet votre agent immobilier, disponible au O6 64 47 59 16, joignable 7 jours/7.

Bilan énergétique

Diagnostics énergetiques
A propos de ce bien Caractéristiques de ce bien
  • Surface 102,85 m²
  • carrez 102,85 m²
  • terrain 136 m²
  • séjour 43 m²
  • 3 chambre(s)
  • 2 salle(s) d'eau
  • construit en 1940
  • cuisine américaine (équipée)
  • exposition Sud
  • 1 côté(s) mitoyen(s)
  • 2 niveau(x)
  • vue Terrasse - Cour
  • cave
  • terrasse

Financier

Informations financières
Prix de vente honoraires TTC inclus 265 000 €
Prix net vendeur 250 000 €
Prix de vente honoraires TTC exclus 250 000 €
Honoraires TTC à la charge acquéreur 6 %
Taxe foncière annuelle 840 €

Autour du bien

Découvrez le quartier

Simulation

Calcul des mensualités
* Champs obligatoires
L'Agence des Remparts Agence