Page suivante
Page précédente
Rue (80120)

Murs et fonds de commerce 461 m²

703 500 €
Réf V130000764

À vendre, immeuble comprenant un local commercial actuellement exploité en Maison de la Presse, avec logement de type 4 et deux garages. Bien idéal pour commerçant, investisseur ou projet de transformation en habitation.

FONDS DE COMMERCE :
Activité diversifiée comprenant : presse, librairie, papeterie, fournitures de bureau, cartes postales, articles cadeaux et souvenirs, maroquinerie, jeux et jouets, loto, location de vélos, structures gonflables et véhicules.
Possibilité de changement d’activité ou transformation en habitation.

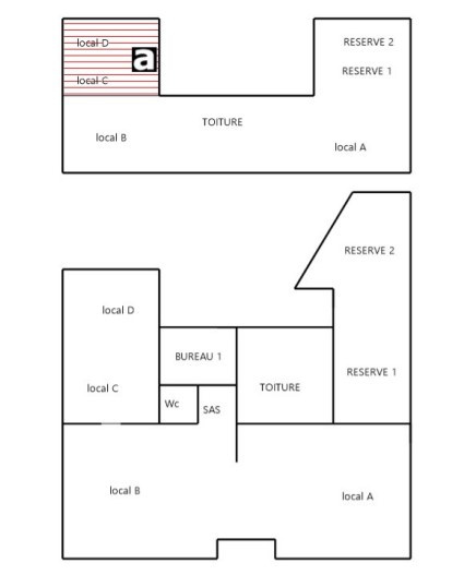
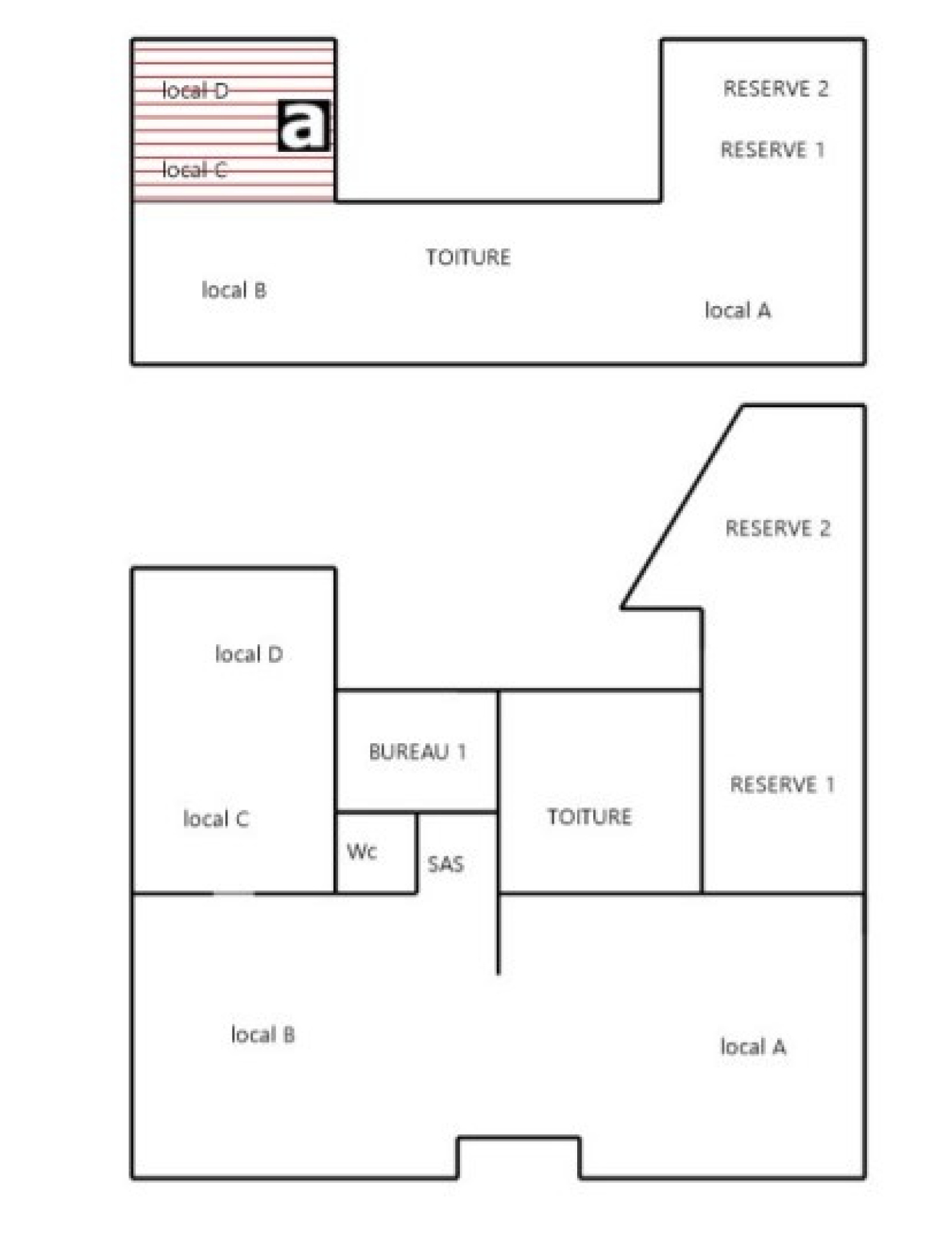
SURFACES :
Surface commerciale : 135 m²
Bureau : 11 m²
Cuisine : 12 m²
Réserve : 20 m²
WC : 1,5 m²
Cour 1 : 25 m²
Cour 2 : 29 m²
2 garages : 20 m² chacun

PARTIE HABITATION :
Appartement de type 4 inclus dans l’immeuble 85m².

INFORMATIONS COMPLÉMENTAIRES :
DPE : B / C
Nombreuses possibilités d’exploitation ou de transformation.
Bien rare sur le secteur.

PRIX : 703 500 € FAI

Pour plus d’informations ou organiser une visite, contactez Romain Vandenberghe L’Agence des Remparts.

Bilan énergétique

Diagnostics énergetiques
A propos de ce bien Caractéristiques de ce bien
  • Surface 461 m²
  • construit en 1949
  • Chauffage autre : chaudière (gaz)

Financier

Informations financières
Prix de vente honoraires inclus 703 500 €
Prix net vendeur 670 000 €
Honoraires à la charge acquéreur 5 %

Autour du bien

Découvrez le quartier
L'Agence des Remparts Agence