Page suivante
Page précédente
Rue (80120)

Murs et fond de commerce

703 500 €
Réf RV320
Maison de la presse, commerce de détail de journaux, livres, papeterie, fournitures de bureau, cartes postales, billets de loterie, loto maroquinerie,

bimbeloterie, articles souvenirs. Vente de jouets, jeux, location de vélos, structures gonflables, véhicules

Le fonde de commerce avec le stock

Un appartement Type 4

Murs du local commercial avec 2 garages

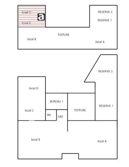
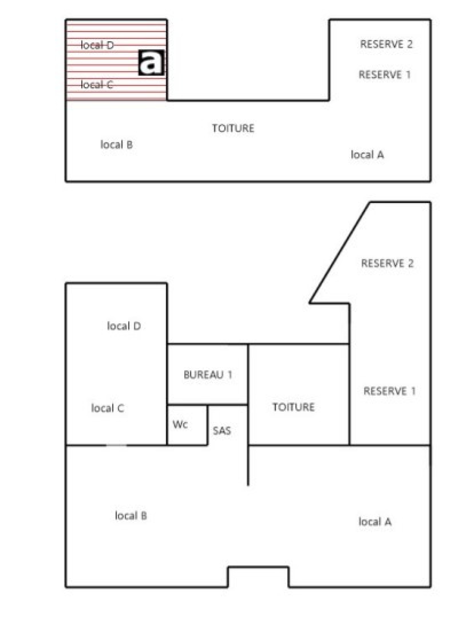
Surface commerciale 135 m2, Bureau de 11 m2, Cuisine de 12 m2, Reserve 20 m2, WC 1,5 m2, Cour 1 25 m2, Cour 2 29 m2, 2 garages de 20 m2

DPE : B, C

Prix de ventes : 703 500 euros FAI

A visiter sans attendre avec L'Agence des Remparts, contactez Romain Vandenberghe votre conseiller immobilier, disponible au O6.84.71.49.48, joignable 7 jours/7


Bilan énergétique

Diagnostics énergetiques
A propos de ce bien Caractéristiques de ce bien
  • construit en 1949
  • Chauffage autre : chaudière (gaz)

Financier

Informations financières
Prix de vente honoraires inclus 703 500 €

Autour du bien

Découvrez le quartier
L'Agence des Remparts Agence