Page suivante
Page précédente
Stella (62780)

Maison 5 pièce(s) 4 chambre(s) 90 m²

1
1
200 m²
422 000 €
Réf 601MB.

EXCLUSIVITE ! Charmante Villa Récente en Forêt de Stella-Plage – 4 Chambres, Jardin parking et Garage – VENDU MEUBLÉ !

Vous recherchez une maison alliant confort, nature et modernité ?

Découvrez cette villa semi-mitoyenne construite en 2006, idéalement située en pleine forêt de Stella-Plage.

Un cadre paisible et verdoyant à seulement quelques minutes des commerces et de la plage !

Caractéristiques du bien :

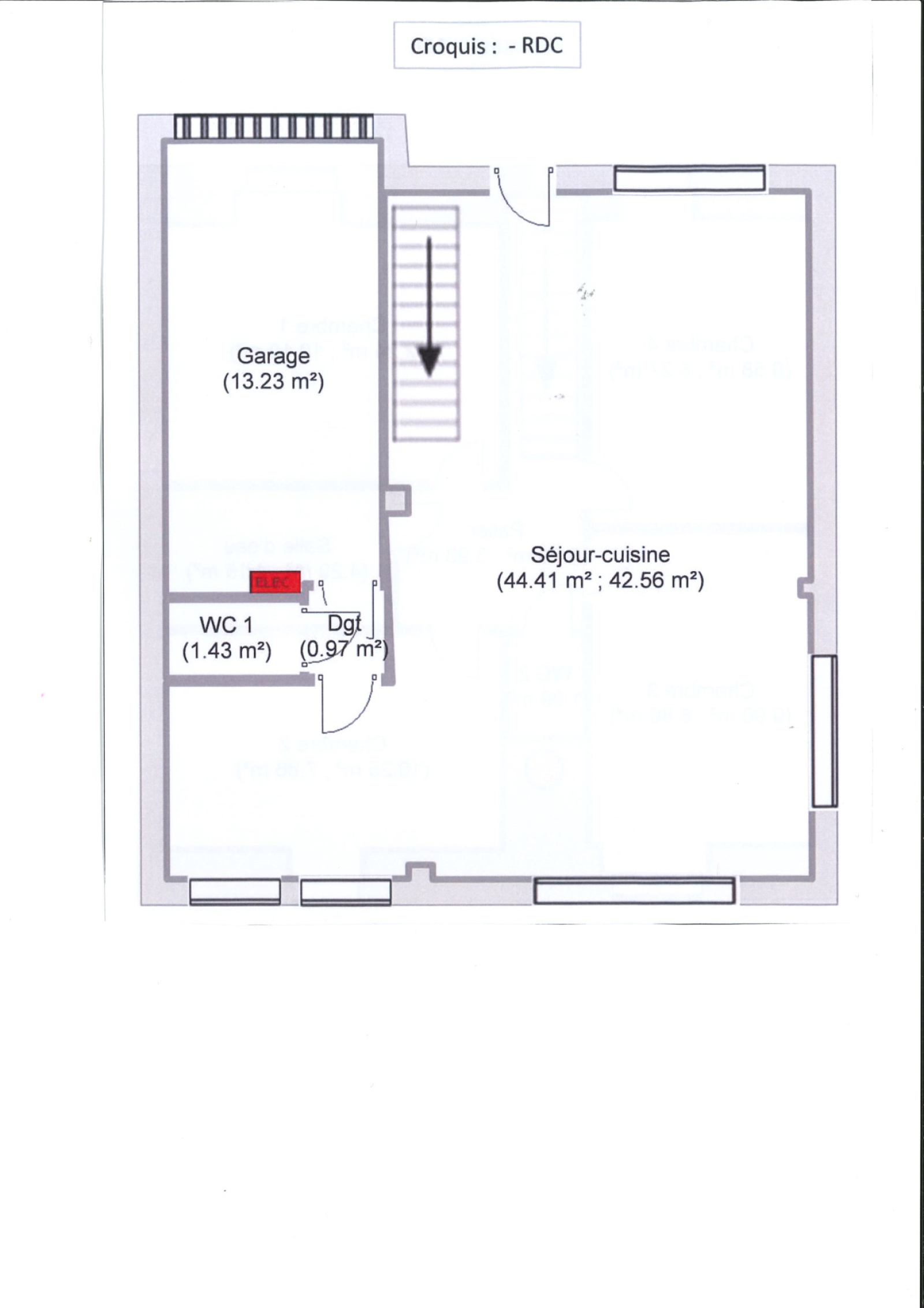
Rez-de-chaussée, Belle pièce de vie lumineuse, séjour-salon avec cuisine ouverte entièrement équipée, WC
4 chambres spacieuses, à l'étage, parfaites pour toute la famille avec placards intégrés
Salle de bains moderne avec baignoire et douche + WC séparés
Deux terrasses pour profiter pleinement des beaux jours expositions EST-OUEST
Jardin arboré, sans vis-à-vis, offrant un cadre naturel et reposant

Parking privatif

Garage carrelé & parking privé

VENDU MEUBLÉ, prêt à emménager sans travaux ni aménagement à prévoir !

Un emplacement idéal !

Nichée en bordure de forêt, cette villa offre un cadre de vie privilégié, en secteur résidentiel calme et boisé.

Contactez-nous dès maintenant au 06 44 24 21 79 pour organiser une visite et laissez-vous séduire !

Risques naturels et technologiques visibles sur www.georisques.gouv.fr

Bilan énergétique

Diagnostics énergetiques
A propos de ce bien Caractéristiques de ce bien
  • Surface 90 m²
  • carrez 90 m²
  • terrain 200 m²
  • séjour 36 m²
  • 4 chambre(s)
  • 1 salle(s) de bain
  • 1 salle(s) d'eau
  • construit en 2006
  • cuisine américaine (équipée)
  • Chauffage individuel : convecteur (electrique)
  • 1 garage(s)
  • 1 parking(s)
  • exposition Est-Ouest
  • 1 côté(s) mitoyen(s)
  • 1 étage(s)
  • vue dégagée
  • terrasse
  • quartier A 5 min du Touquet, A DEUX PAS DE LA FORET DU TOUQUET, CALME, Secteur Forêt, STELLA-PLAGE

Composition

Composition de ce bien

Rez-de-chaussée

  • séjour
  • cuisine
  • palier
  • chambre
  • chambre
  • chambre
  • cellier
  • salle de bains
  • wc
  • wc
  • dégagement

Info copro

Copropriété
  • Copropriété Oui
  • Lot n° 4
  • Nombre de lots 8
  • Quote part annuelle des charges 660 €
  • Plan de sauvegarde Non
  • Statut du syndic Pas de procédure en cours

Financier

Informations financières
Prix de vente honoraires TTC inclus 422 000 €
Charges 55 €
Taxe foncière annuelle 928 €

Autour du bien

Découvrez le quartier

Simulation

Calcul des mensualités
* Champs obligatoires
Agence du Golf Agence