À Vendre en Exclusivité - Villa Individuelle de Plain-Pied - 3 Chambres - Stella-Plage, Proche du Touquet
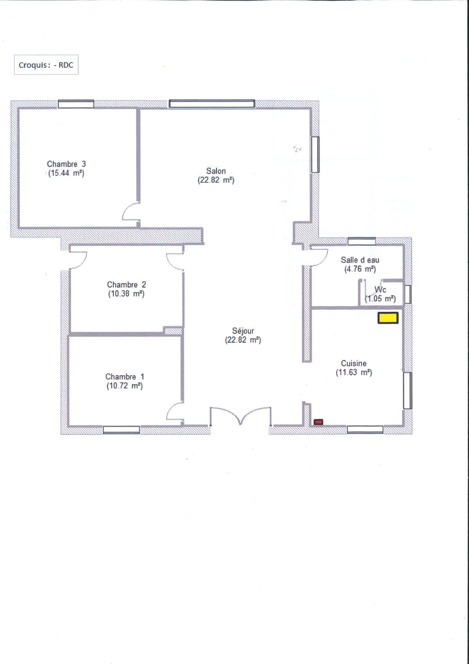
Rare à la vente ! Située en exclusivité à Stella-Plage, cette magnifique villa individuelle de plain-pied d'environ 100m² habitables vous offre un cadre de vie idyllique, calme et résidentiel, tout en étant à quelques minutes du Touquet. Avec une toiture neuve et des finitions soignées, cette maison ne nécessite aucun travaux et vous permettra de vous y installer immédiatement. Vendu en partie meublée.
Caractéristiques principales :
- 100m² habitables : Des volumes spacieux et bien agencés pour un confort optimal.
- Séjour traversant lumineux : Un grand séjour lumineux offrant une vue agréable sur le jardin.
- 3 chambres spacieuses et bien exposées.
- Cuisine aménagée et équipée.
- Salle de bains moderne.
- Jardin clos et arboré d'environ 578m², parfait pour vos moments de détente.
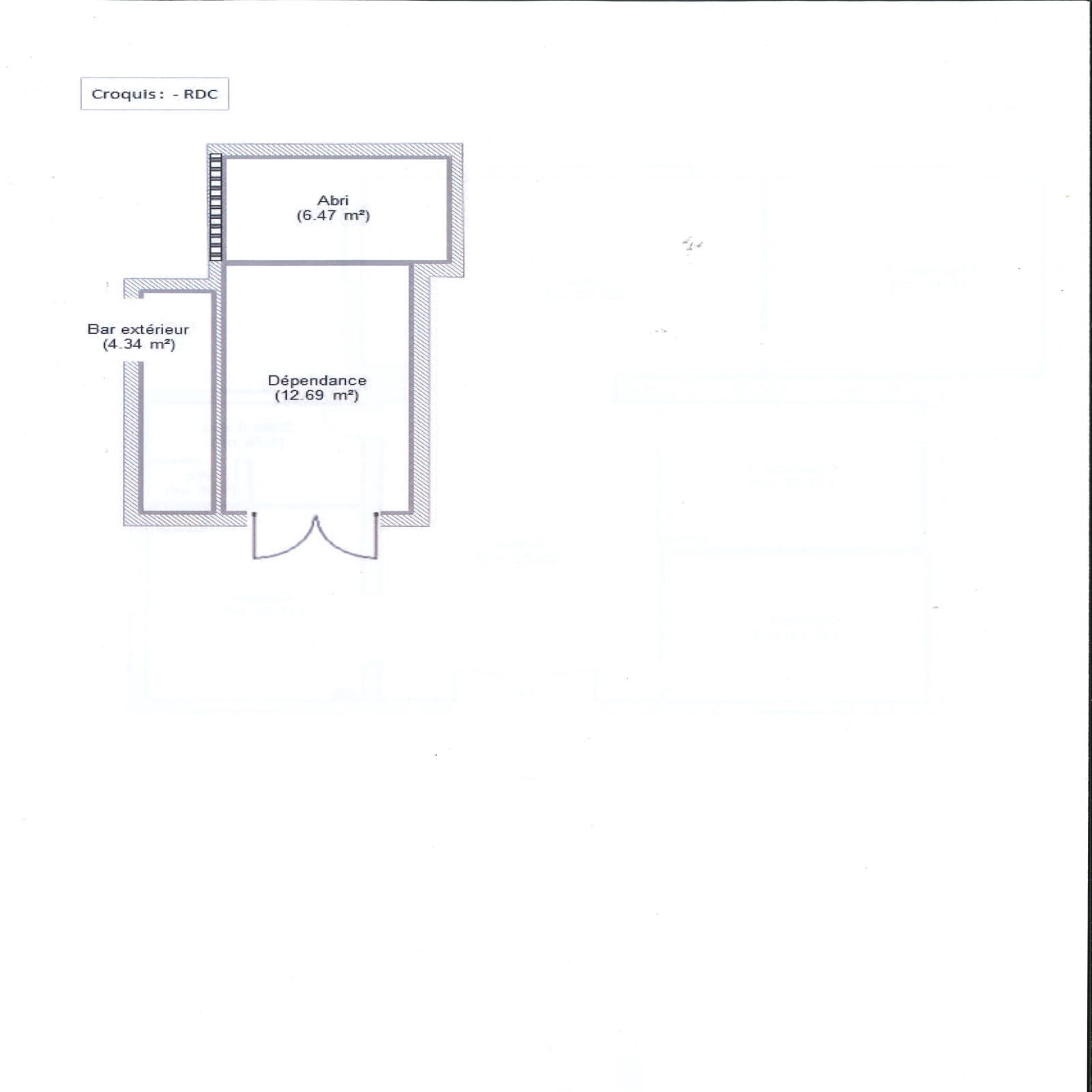
- Garage privé indépendant.
- Parkings.
Points forts :
- Toiture neuve,
- Emplacement rare et recherché, à proximité immédiate de la plage, des commerces.
- Secteur calme et résidentiel, idéal pour une vie tranquille à l'année ou en résidence secondaire.
- Parfait état
- traversant et lumineuse
- Plain-Pied
Contactez-nous pour organiser un rendez-vous de visite.
Les risques naturels et technologiques sont visibles sur le site www.georisques.gouv.fr
 
                 
                                         
                                         
                                         
                                         
                                         
                                         
                                         
                                         
                                         
                                         
                                         
                                         
                                         
                                         
                                         
                                         
                                         
                                         
                                         
                                         
                                         
                                     
                                     
                                     
                                     
                                     
                                     
                                     
                                     
                                     
                                     
                                     
                                     
                                     
                                     
                                     
                                     
                                     
                                     
                                     
                                     
                                     
                                 
                                 
                                 
                                 
                                 
                                 
                                 
                                 
                                 
                                 
                                 
                                 
                                 
                                 
                                 
                                 
                                 
                                 
                                 
                                 
                                 
             
                                                 
                                                