Neuville-sous-Montreuil (62170)

Maison 6 pièce(s) 5 chambre(s) 129.7 m²

1
1
900 m²
283 500 €
Réf VAP336
Maison semi-individuelle située dans un secteur recherché de Neuville-sous-Montreuil (non concernée par les inondations), aux portes de Montreuil, offrant une surface habitable de 130 m².
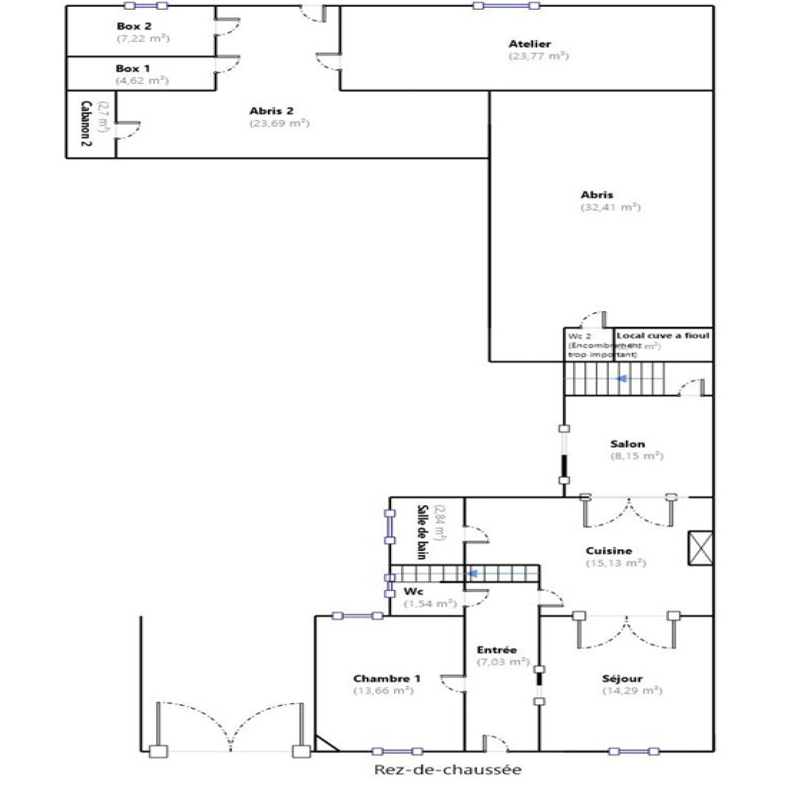
Au rez-de-chaussée, un couloir dessert une chambre ainsi qu'un bel espace de vie comprenant un salon et une cuisine ouverte, meublée et équipée, récente (2022), prolongé par une salle à manger. Ce niveau dispose également d'une salle de bain et d'un WC indépendant.
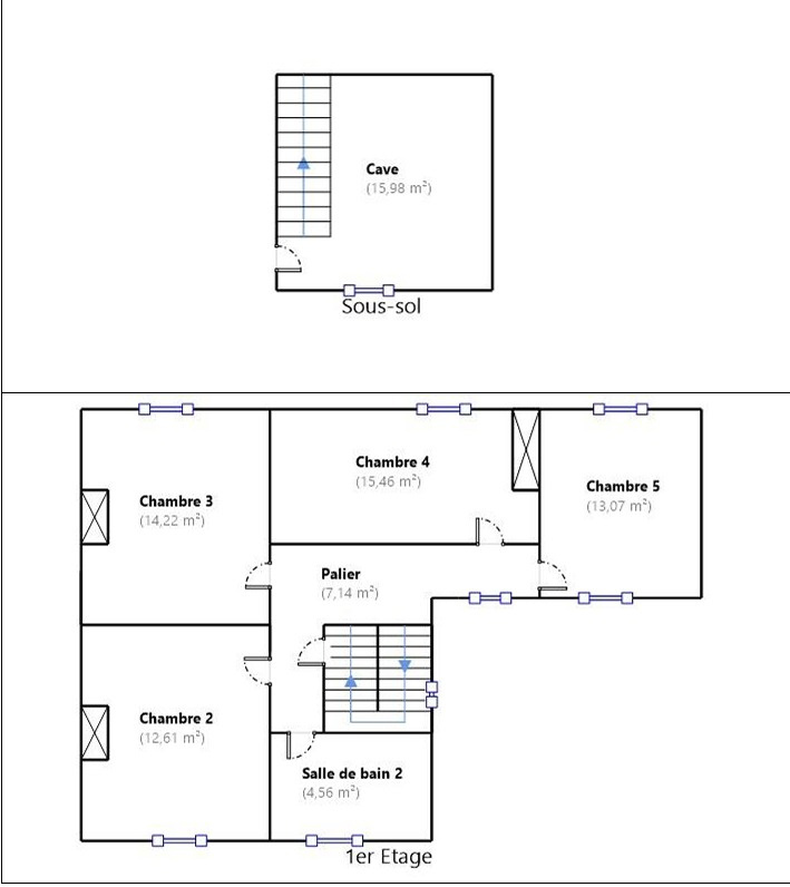
À l'étage, un palier distribue quatre chambres et une salle d'eau.

Le deuxième étage offre des combles aménageables d'environ 40 m², laissant de belles possibilités d'aménagement.
La maison bénéficie également d'une cave d'environ 12 m².

Construction traditionnelle, elle est équipée de menuiseries en PVC double vitrage avec volets roulants. Le chauffage est assuré par une pompe à chaleur air/eau récente (3 ans), complétée par un ballon thermodynamique et un adoucisseur d'eau (4 ans). L'ensemble est entièrement isolé, raccordé au tout-à-l'égout, avec un bon classement énergétique (DPE en C et émissions de CO² en A). Édifiée sur un terrain clos, la propriété dispose d'une cour avec terrasse abritée, d'un jardin exposé plein sud avec dépendances (étables), ainsi que d'une entrée sous porche permettant de stationner un véhicule à l'abri.

Emplacement privilégié avec commodités accessibles à pied (commerces de proximité tels que boulangerie, boucherie, épicerie, pharmacie ...).

À visiter sans attendre avec L'Agence des Remparts, demandez Aurélien Piquet votre agent immobilier.

Bilan énergétique

Diagnostics énergetiques
A propos de ce bien Caractéristiques de ce bien
  • Surface 129,70 m²
  • carrez 129,70 m²
  • terrain 900 m²
  • séjour 15 m²
  • 5 chambre(s)
  • 1 salle(s) de bain
  • 1 salle(s) d'eau
  • construit en 1940
  • cuisine américaine (équipée)
  • Chauffage central : trad_type_chauff_air_eau (pompe à chaleur)
  • exposition Sud
  • 1 côté(s) mitoyen(s)
  • 2 niveau(x)
  • cave
  • balcon

Financier

Informations financières
Prix de vente honoraires TTC inclus 283 500 €
Prix net vendeur 270 000 €
Prix de vente honoraires TTC exclus 270 000 €
Honoraires TTC à la charge acquéreur 5 %
Taxe foncière annuelle 1 400 €

Autour du bien

Découvrez le quartier

Simulation

Calcul des mensualités
* Champs obligatoires
L'Agence des Remparts Agence