Page suivante
Page précédente
Cucq (62780)

Maison 5 pièce(s) 4 chambre(s) 135 m²

2
2
543 m²
675 000 €
Réf 684MB

Découvrez cette superbe villa rénovée avec soin, située dans le quartier prisé de Stella.

Dès l’entrée, vous serez charmé par un vaste séjour lumineux d'environ 60m² avec une cuisine américaine meublée et équipée avec ilot central.

Le rez-de-chaussée dispose d'une suite parentale avec salle d’eau privative.

Un WC séparé et un cellier complètent ce niveau.

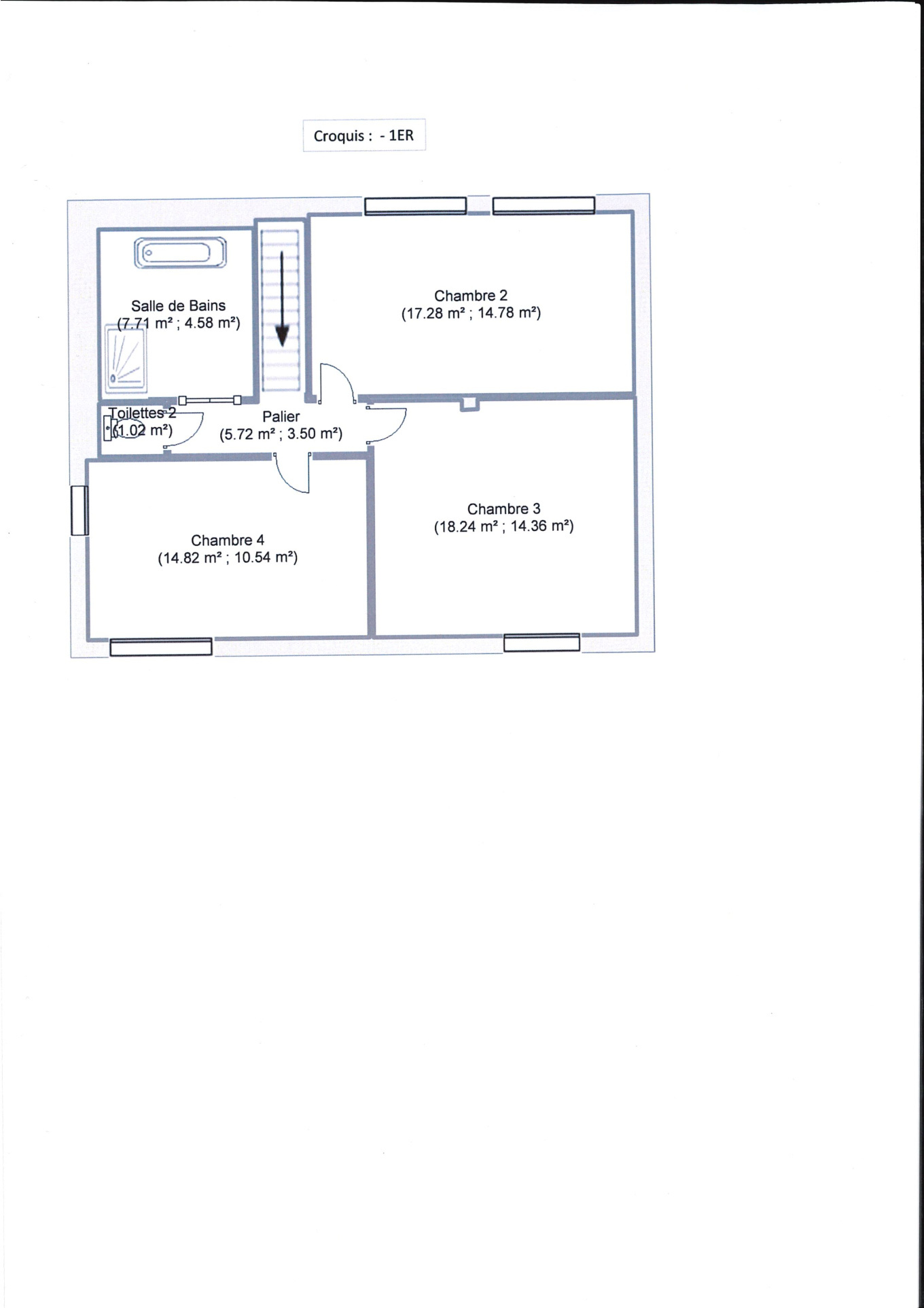
À l’étage, un palier dessert trois chambres, une grande salle d’eau ainsi qu’un second WC séparé.

Par ailleurs; Belle terrasse en bois ensoleillée sur le jardin.

VILLA COUP DE COEUR !

Pour en savoir plus une visite s'impose !

Contactez-nous au 03 21 94 60 65

Bilan énergétique

Diagnostics énergetiques
A propos de ce bien Caractéristiques de ce bien
  • Surface 135 m²
  • carrez 135 m²
  • terrain 543 m²
  • séjour 59 m²
  • 4 chambre(s)
  • 2 salle(s) de bain
  • 2 salle(s) d'eau
  • cuisine américaine (équipée)
  • Chauffage individuel : convecteur (electrique)
  • 1 parking(s)
  • exposition Nord-Sud
  • 2 niveau(x)
  • terrasse
  • arboré
  • quartier A 5 min du Touquet, CALME, STELLA-PLAGE

Financier

Informations financières
Prix de vente honoraires TTC inclus 675 000 €

Autour du bien

Découvrez le quartier

Simulation

Calcul des mensualités
* Champs obligatoires
Agence du Golf Agence