Cucq (62780)

Maison 5 pièce(s) 4 chambre(s) 101 m²

1
1
422 000 €
Réf MG678

Maison à rénover, pleine de charme et de caractère.
Construite dans les années 50, cette maison située à proximité du centre de Stella offre un beau potentiel.

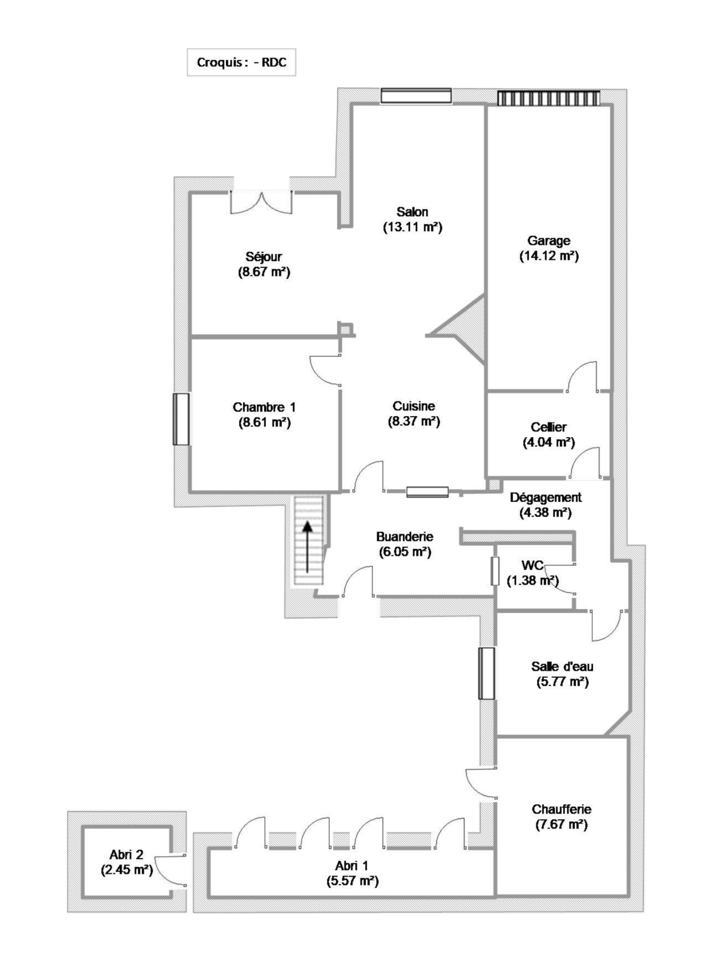
Au rez-de-chaussée, elle se compose d’un salon-séjour avec cuisine ouverte, d’une chambre, d’une buanderie, d’un cellier avec accès au garage, d’un WC, d’une salle d’eau ainsi que d’une chaufferie. Deux abris de jardin sont également accessibles à l’arrière de la maison.

À l’étage, vous trouverez une chambre en enfilade ainsi que deux autres chambres supplémentaires.

La maison nécessite d’importants travaux de rénovation afin de répondre aux standards actuels, mais bénéficie d’un emplacement idéal : à 500 m du centre-ville et à seulement 50 m des dunes, dans un secteur calme et résidentiel.

Le tout est édifié sur un terrain d’environ 300 m².

Bilan énergétique

Diagnostics énergetiques
A propos de ce bien Caractéristiques de ce bien
  • Surface 101 m²
  • carrez 101 m²
  • 4 chambre(s)
  • 1 salle(s) de bain
  • construit en 1953
  • cuisine américaine (équipée)
  • Chauffage individuel : chaudière (gaz)
  • 1 garage(s)
  • exposition Nord-Sud
  • 1 côté(s) mitoyen(s)
  • 1 niveau(x)
  • cave
  • terrasse

Financier

Informations financières
Prix de vente honoraires TTC inclus 422 000 €

Autour du bien

Découvrez le quartier

Simulation

Calcul des mensualités
* Champs obligatoires
Agence du Golf Agence