Page suivante
Page précédente
Cucq (62780)

Maison 5 pièce(s) 4 chambre(s) 100 m²

2
2
422 000 €
Réf 677MB

Bienvenue dans cette maison qui dégage immédiatement une atmosphère accueillante et chaleureuse.

Située dans un secteur calme de Stella-Plage, elle offre l’équilibre parfait entre tranquillité et proximité du centre des dunes et de la plage.

Édifiée sur un terrain de 443 m², elle s’ouvre sur un jardin arrière exposé plein sud, un véritable havre de paix où l’on imagine facilement partager des moments en famille, jardiner ou simplement profiter du soleil.

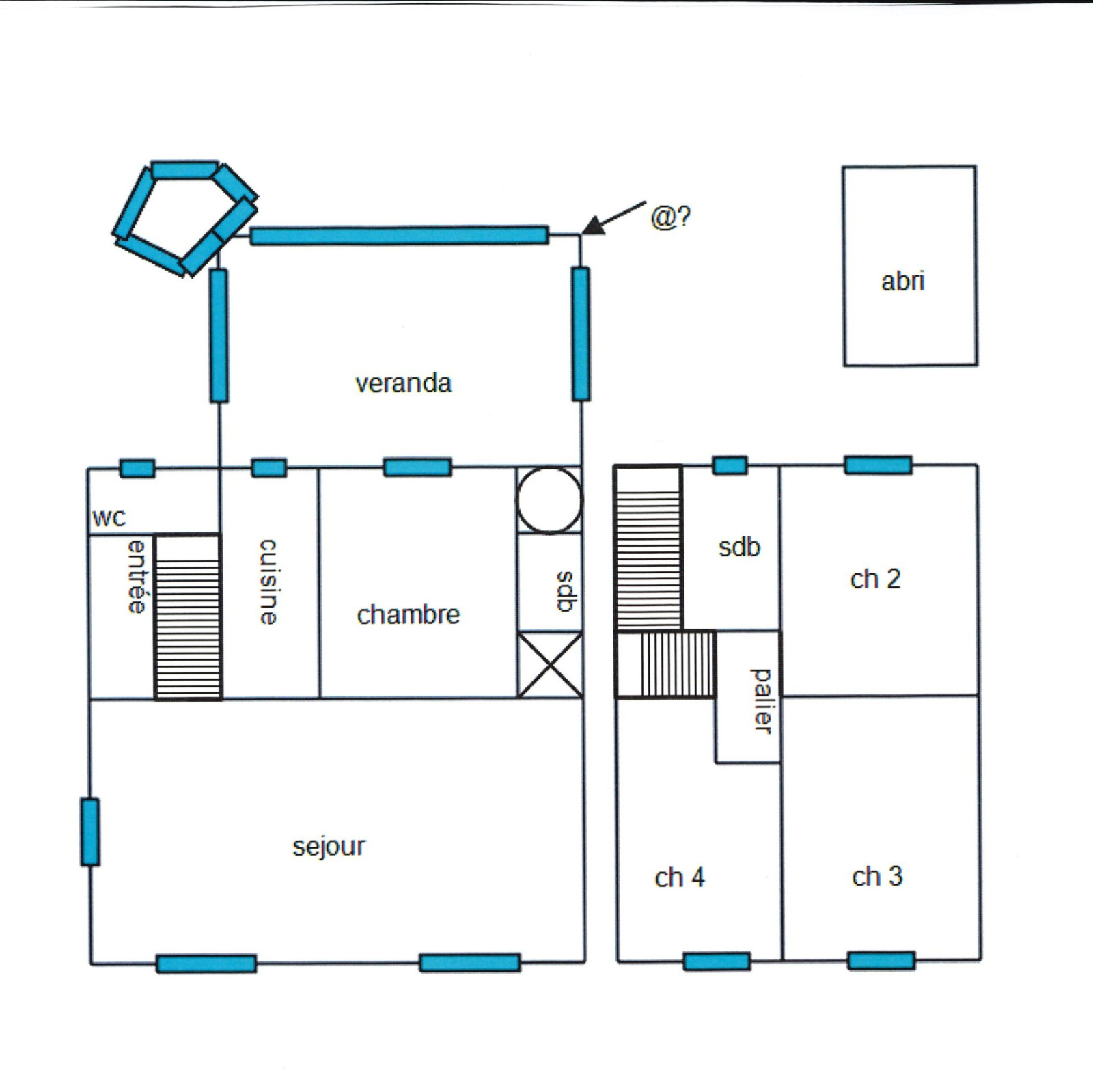
Le rez-de-chaussée offre un quotidien confortable grâce à une véranda chauffée, baignée de lumière, qui devient naturellement le cœur de la maison. Une chambre et une salle d’eau de plain-pied permettent de vivre sans contrainte, un vrai plus au quotidien.

À l’étage, trois autres chambres et une salle de bain accueillent chaleureusement famille et amis, chacune apportant son charme et son intimité.

Pour compléter le tout, une dépendance offre de nombreuses possibilités : rangement, atelier créatif, espace de loisirs ou petit coin d’indépendance… à vous d’y projeter vos envies.

On aime particulièrement :

  • La personnalité et le charme de la maison

  • La vie de plain-pied possible

  • La véranda chauffée, conviviale et lumineuse

  • Le jardin sud, intime et apaisant

  • La dépendance polyvalente

  • Le calme du secteur

  • La proximité de la plage et des commodités

Une maison où l’on se sent bien dès les premières minutes…
Contactez-nous au 03 21 94 60 65 pour venir la découvrir et vous y projeter.

Les risques naturels et technologiques sont visibles sur le site www.georisques.gouv.fr

Bilan énergétique

Diagnostics énergetiques
A propos de ce bien Caractéristiques de ce bien
  • Surface 100 m²
  • séjour 30 m²
  • 4 chambre(s)
  • 2 salle(s) de bain
  • 2 salle(s) d'eau
  • construit en 1960
  • cuisine séparée (semi-équipée)
  • Chauffage central : chaudière (gaz de ville)
  • Chauffage individuel : poêle (bois)
  • exposition Nord-Sud
  • 2 niveau(x)
  • vue JARDIN
  • terrasse
  • quartier A 5 min du Touquet, CALME, STELLA-PLAGE

Financier

Informations financières
Prix de vente honoraires TTC inclus 422 000 €
Taxe foncière annuelle 1 406 €

Autour du bien

Découvrez le quartier

Simulation

Calcul des mensualités
* Champs obligatoires
Agence du Golf Agence