Villa de Caractère en exclusivité à STELLA-PLAGE !
Une opportunité unique s'offre à vous avec cette somptueuse villa de caractère, alliant confort moderne et charme authentique.
Située dans un quartier paisible à proximité des commodités, cette propriété offre un style de vie incomparable tout en étant au calme.
Caractéristiques Principales :
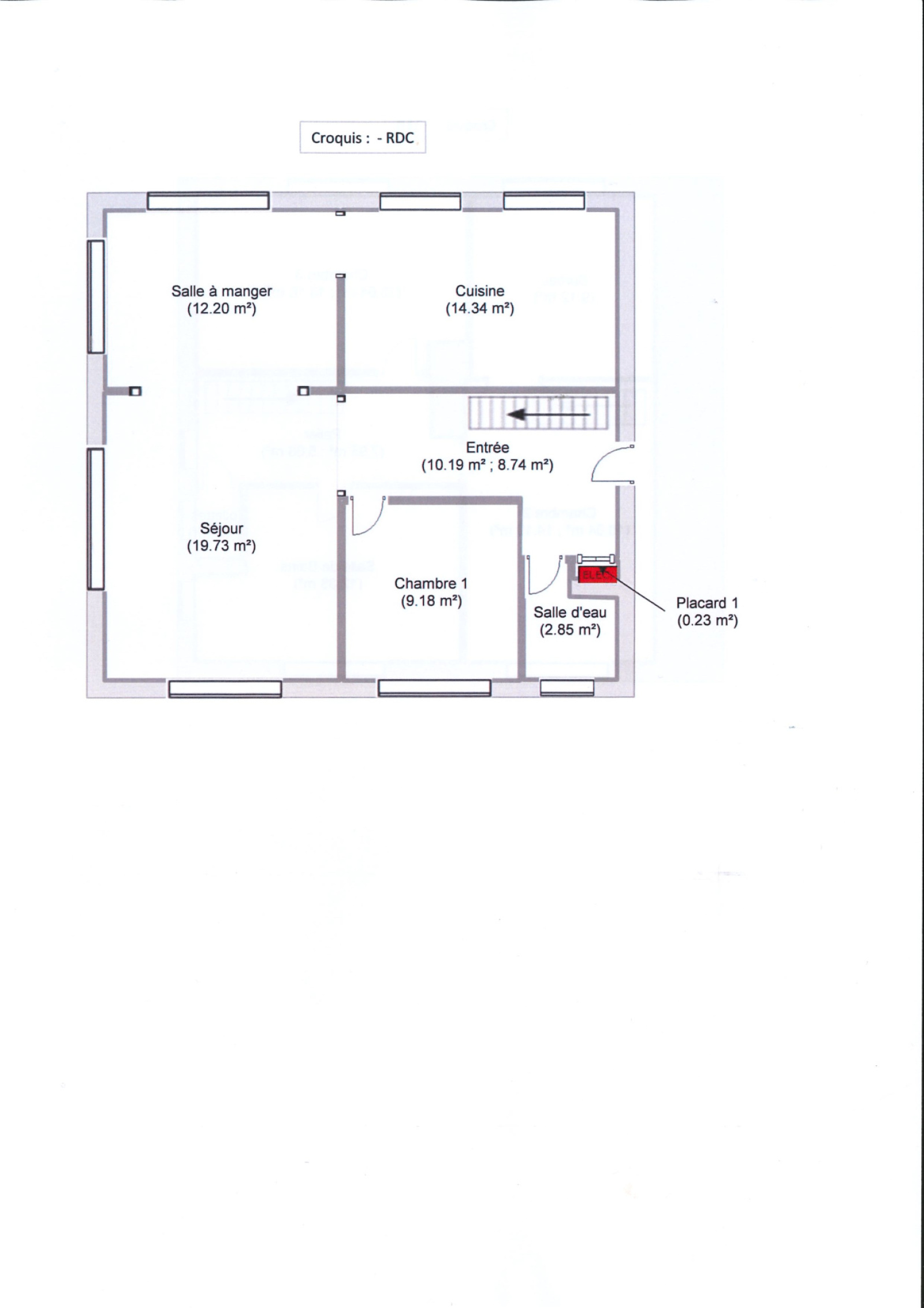
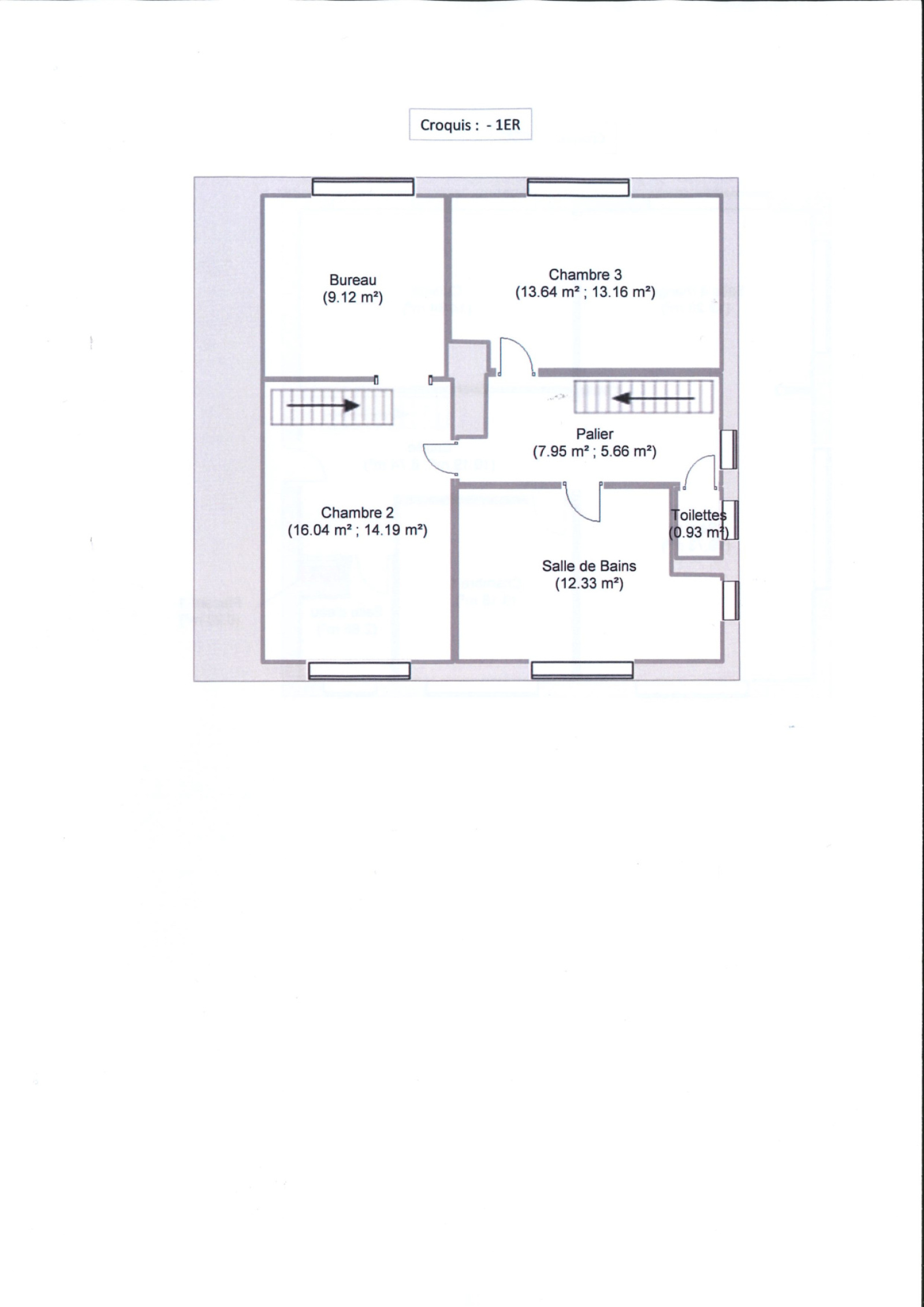
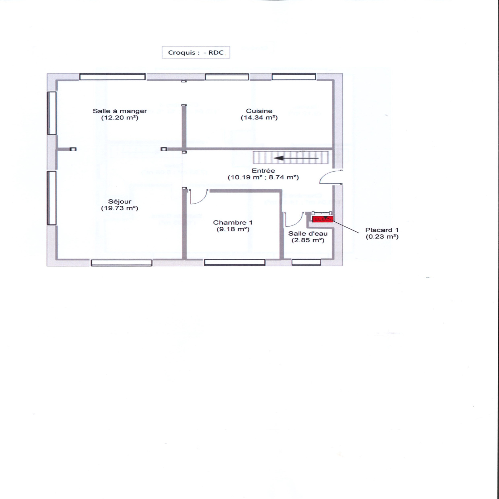
- 5 chambres spacieuses, dont 1 en rez-de-chaussée avec salle d'eau et wc
- Séjour lumineux bénéficiant d'une triple exposition, inondant les espaces de vie de lumière naturelle tout au long de la journée.
- Grande cuisine équipée séparée, idéale pour les passionnés de gastronomie, donnant accès à une vaste terrasse orientée Sud-Ouest, parfaite pour les repas en plein air et les moments de détente.
- Bon état général, garantissant un confort immédiat et une vie sans tracas.
- Jardin clôturé d'environ 850m², magnifiquement aménagé, offrant intimité et espace pour vos loisirs en plein air.
- Chalet en bois et dépendance offrant un espace de rangement supplémentaire et des possibilités d'aménagement selon vos besoins.
- Parking aérien pour plusieurs véhicules, assurant praticité et facilité d'accès à votre domicile.
Localisation : Située dans un environnement boisé et paisible, cette villa bénéficie d'un cadre naturel préservé, propice à la détente et à la sérénité. À proximité immédiate des commerces.
Contactez-nous dès aujourd'hui au 06 44 24 21 79 ou au 03 21 94 60 65 pour organiser une visite (UNIQUEMENT SUR RENDEZ-VOUS)
Les informations sur les risques sont disponibles sur le site Géorisques : www.georisques.gouv.fr
Honoraire charge vendeur
 
                 
                                         
                                         
                                         
                                         
                                         
                                         
                                         
                                         
                                         
                                         
                                         
                                         
                                         
                                         
                                         
                                         
                                         
                                         
                                         
                                         
                                         
                                         
                                         
                                         
                                     
                                     
                                     
                                     
                                     
                                     
                                     
                                     
                                     
                                     
                                     
                                     
                                     
                                     
                                     
                                     
                                     
                                     
                                     
                                     
                                     
                                     
                                     
                                     
                                 
                                 
                                 
                                 
                                 
                                 
                                 
                                 
                                 
                                 
                                 
                                 
                                 
                                 
                                 
                                 
                                 
                                 
                                 
                                 
                                 
                                 
                                 
                                 
             
                                                 
                                                