Page suivante
Page précédente
Montreuil-sur-Mer (62170)

Maison 6 pièce(s) 3 chambre(s) 205 m²

1
1
2519 m²
556 500 €
Réf AP278

L'Agence des Remparts vous propose à la vente à 5 minutes de Montreuil dans la vallée de la Course, cette belle maison de 205 m² habitables 3 chambres, sur plus de 2 000 m² .

- Nichée au calme, cette grande maison offre un cadre de vie idyllique, la propriété a été soigneusement rénovée pour offrir le confort et l'esthétisme d'une maison moderne et le charme intemporel.
Elle se compose: D'un hall d'entrée - d'un salon de 15 m² avec cuisinière à feu de bois et poutres apparentes, d'un second grand salon de 35 m² avec un insert à bois et poutres apparentes également, créant une atmosphère chaleureuse et conviviale.
A la suite une salle à manger côté jardin, avec doubles baies vitrées qui s'ouvrent harmonieusement sur le jardin, invitant la lumière naturelle à baigner l'espace intérieur.
Un coin bar suivi de la cuisine indépendante très bien équipée et aménagée de 27 m²
Nous avons également au rdc un WC et une grande salle de bains avec douche, double vasque et baignoire.
A l'étage un palier desservant trois chambres dont une avec salle d'eau.
Système de chauffage: Pompe à chaleur air/eau - Adoucisseur d'eau - Assainissement autonome conforme: micro-station - Menuiseries en alu -
Vous profiterez d'une terrasse sans vis à vis et idéalement exposée avec vue sur la nature pour des moments de détente en plein air dans un cadre unique, sans oublier un cours d'eau en fond de terrain.
Egalement d'un grand garage de 70 m² avec une grande porte sectionnelle motorisée de 5.60 m de large.

À visiter sans attendre avec L'Agence des Remparts, contactez Romain votre agent immobilier, disponible au O6 84 71 49 48, joignable 7 jours/7.

Bilan énergétique

Diagnostics énergetiques
A propos de ce bien Caractéristiques de ce bien
  • Surface 205 m²
  • carrez 205,54 m²
  • terrain 2 519 m²
  • séjour 24,59 m²
  • 3 chambre(s)
  • 1 salle(s) de bain
  • 1 salle(s) d'eau
  • cuisine américaine (équipée)
  • Chauffage central : chaudière (pompe à chaleur)
  • 1 garage(s)
  • 5 parking(s)
  • exposition Sud-Ouest
  • 2 niveau(x)
  • vue nature
  • terrasse
  • arboré
  • piscinable

Composition

Composition de ce bien

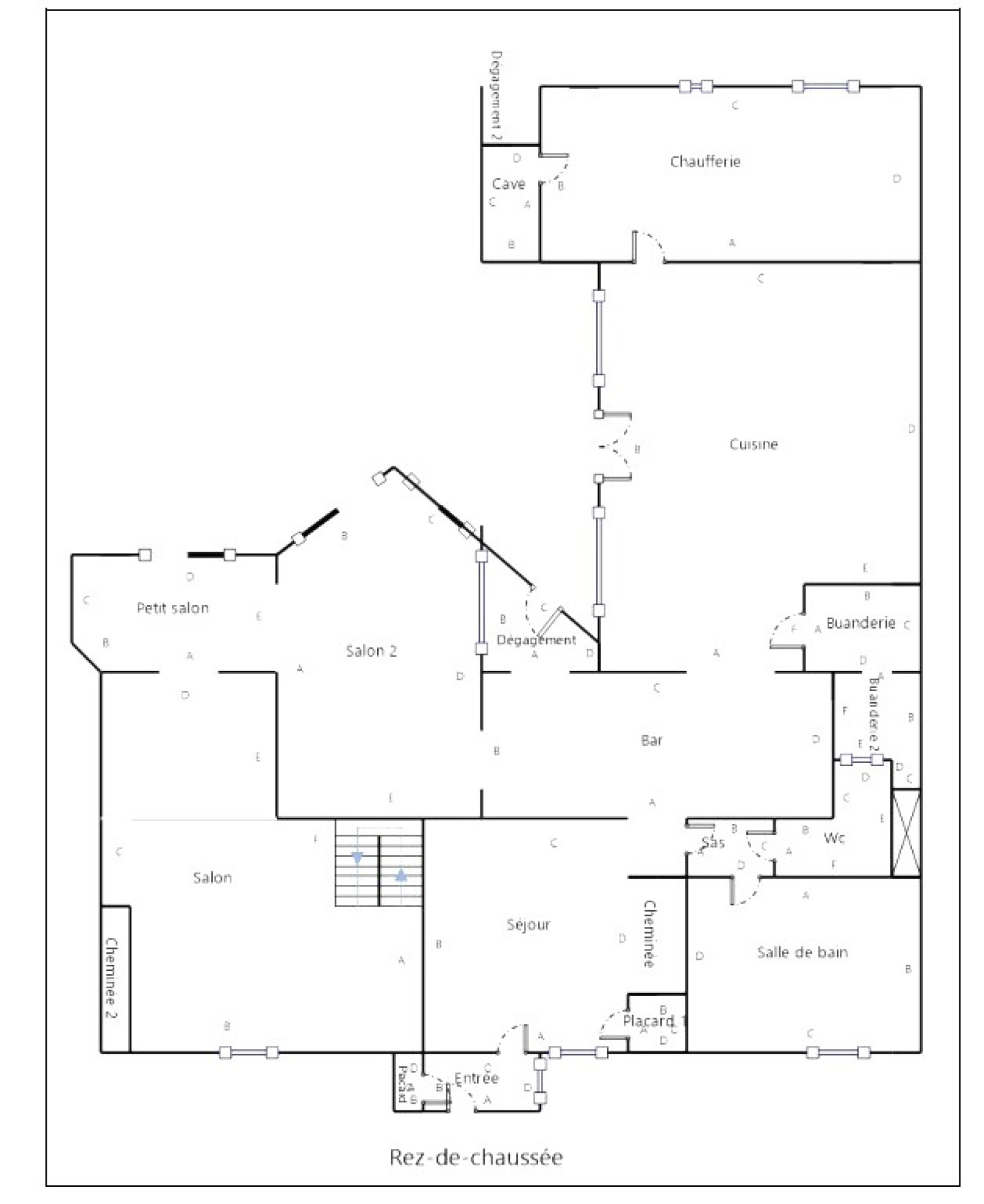
Rez-de-chaussée

  • Entrée 2.10 m²
  • Séjour 14.91 m²
  • salon 24.59 m²
  • petit salon 9.54 m²
  • salon 2 18.70 m²
  • sas 1.37 m²
  • WC 2.23 m²
  • salle de bain 10.18 m²
  • bar 11 m²
  • Dégagement 2.37 m²
  • cuisine 27.01 m²
  • buanderie 2.80 m²
  • buanderie 2 3.39 m²
  • Chaufferie 17.15 m²
  • placard 0.66 m²
  • 0.50 m²

Etage 1

  • mezzanine 12.69 m²
  • salle d'eau 1.41 m²
  • chambre 1 13.69 m²
  • chambre 2 13.48 m²
  • dressing 3.39 m²
  • chambre 3 10.86 m²

Financier

Informations financières
Prix de vente honoraires TTC inclus 556 500 €
Prix net vendeur 530 000 €
Prix de vente honoraires TTC exclus 530 000 €
Honoraires TTC à la charge acquéreur 5 %
Taxe foncière annuelle 678 €

Autour du bien

Découvrez le quartier

Simulation

Calcul des mensualités
* Champs obligatoires
L'Agence des Remparts Agence