Page suivante
Page précédente
Le Boisle (80150)

Maison 3 pièce(s) 2 chambre(s) 60 m²

1
1957 m²
1
149 000 €
Réf 131359

"Petit" paradis à la campagne

Nous vous proposons à l'achat en EXCLUSIVITÉ cette maison de village située à BOUFFLERS, dans le triangle HESDIN/ABBEVILLE/AUXI LE CHATEAU

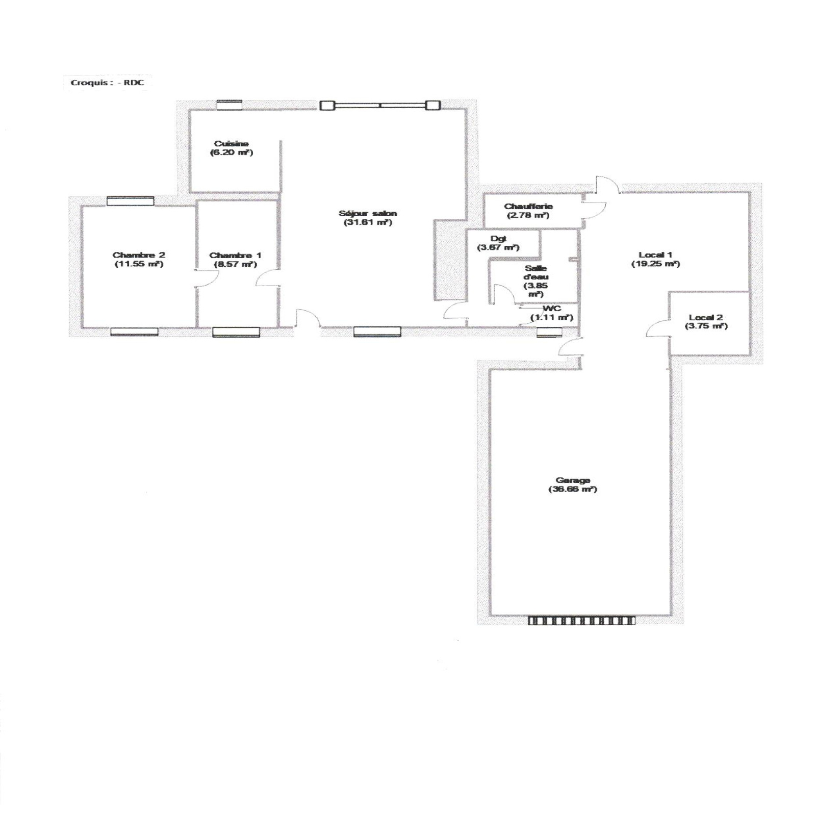
Une belle pièce de vie avec cheminée feu de bois, une cuisine ouverte, une chambre, une petite chambre- bureau, et une salle d'eau

Mais également une terrasse avec vue sur un étang, un garage, des dépendances, un très beau jardin arboré, le calme, la verdure..., le tout sur environ 2000m²

Le bien idéal si vous aimez la campagne et la nature

Les informations sur les risques auxquels ce bien est exposé sont disponibles sur le site Géorisques : www.georisques.gouv.fr.

Prix : 149.000€
Honoraires charge vendeur
DPE E 279, réalisé le 16 septembre 2025

L'Agence de Rang du Fliers, membre du réseau AICO : 1 mandat exclusif = 7 agences à votre service

Bilan énergétique

Diagnostics énergetiques
A propos de ce bien Caractéristiques de ce bien
  • Surface 60 m²
  • carrez 66 m²
  • terrain 1 957 m²
  • séjour 31 m²
  • 2 chambre(s)
  • 1 salle(s) d'eau
  • construit en 1900
  • 1 garage(s)
  • exposition Est-Ouest
  • 1 niveau(x)
  • terrasse
  • accès handicapé

Financier

Informations financières
Prix de vente 149 000 € Les honoraires d'agence seront intégralement à la charge du vendeur

Autour du bien

Découvrez le quartier

Simulation

Calcul des mensualités
* Champs obligatoires
Agence de Rang du Fliers Agence