Page suivante
Page précédente
Berck (62600)

Maison 7 pièce(s) 4 chambre(s) 92.12 m²

2
238 m²
1
299 000 €
Réf 131375

Pavillon 4 chambres en EXCLUSIVITÉ à BERCK VILLE

Nous vous proposons à l'achat ce pavillon situé dans un chouette quartier de BERCK VILLE, en plein coeur des commerces.

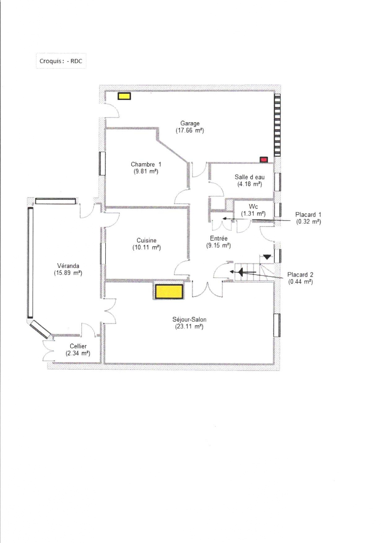
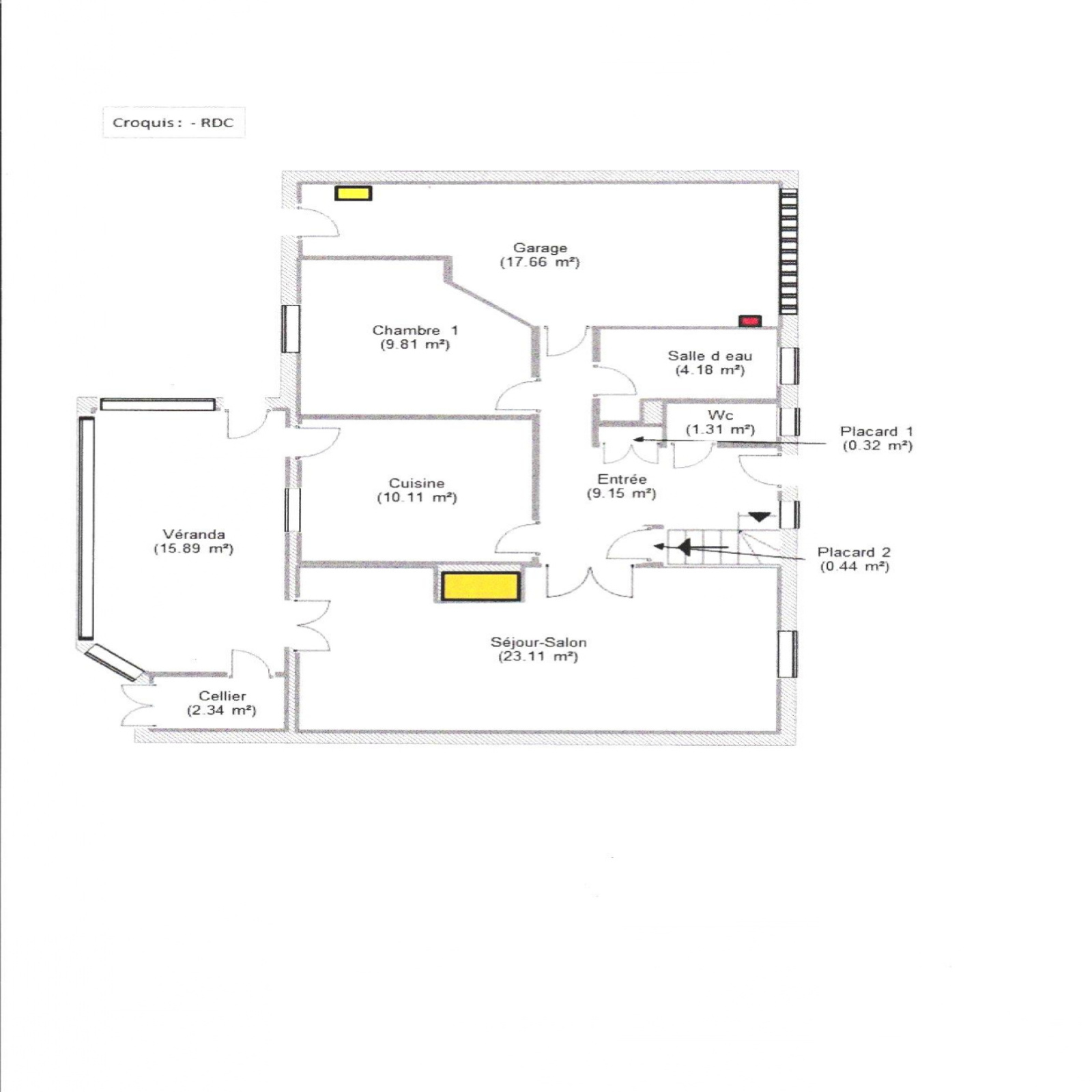
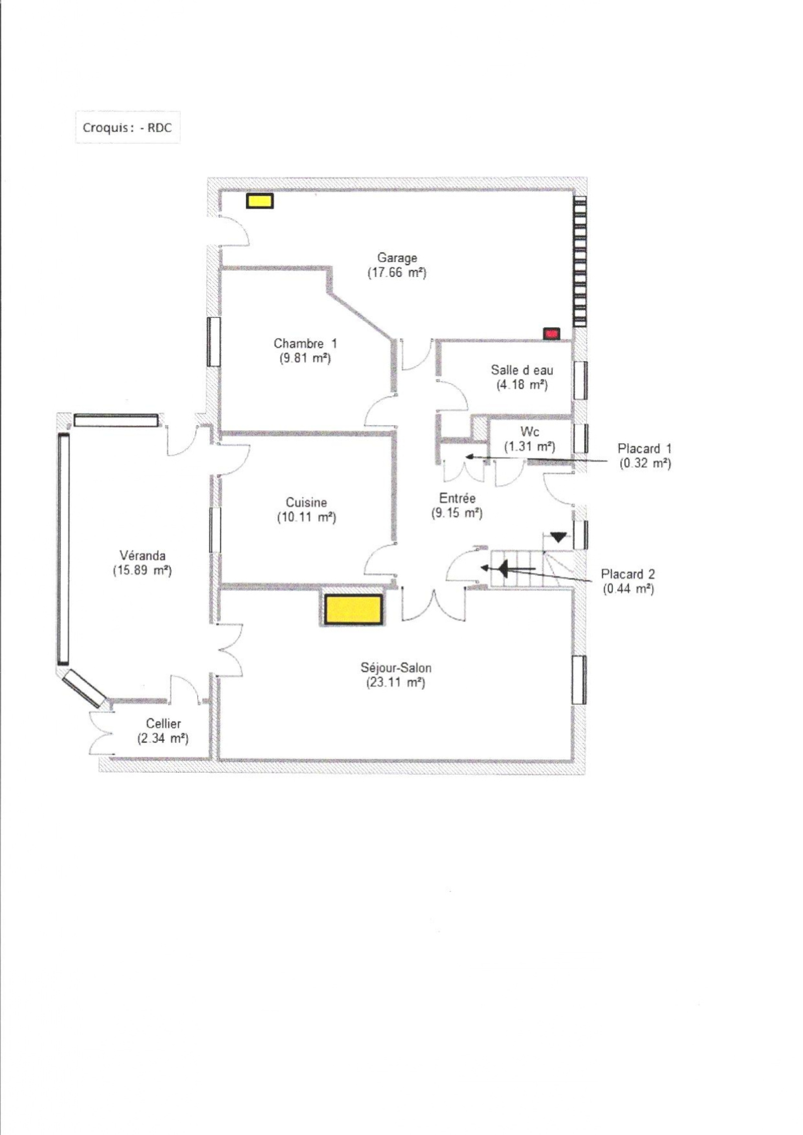
Habitable de plain-pied, il comprend précisément un hall avec placards, une cuisine équipée, un salon/séjour avec cheminée, une chambre, une salle de douche et une véranda

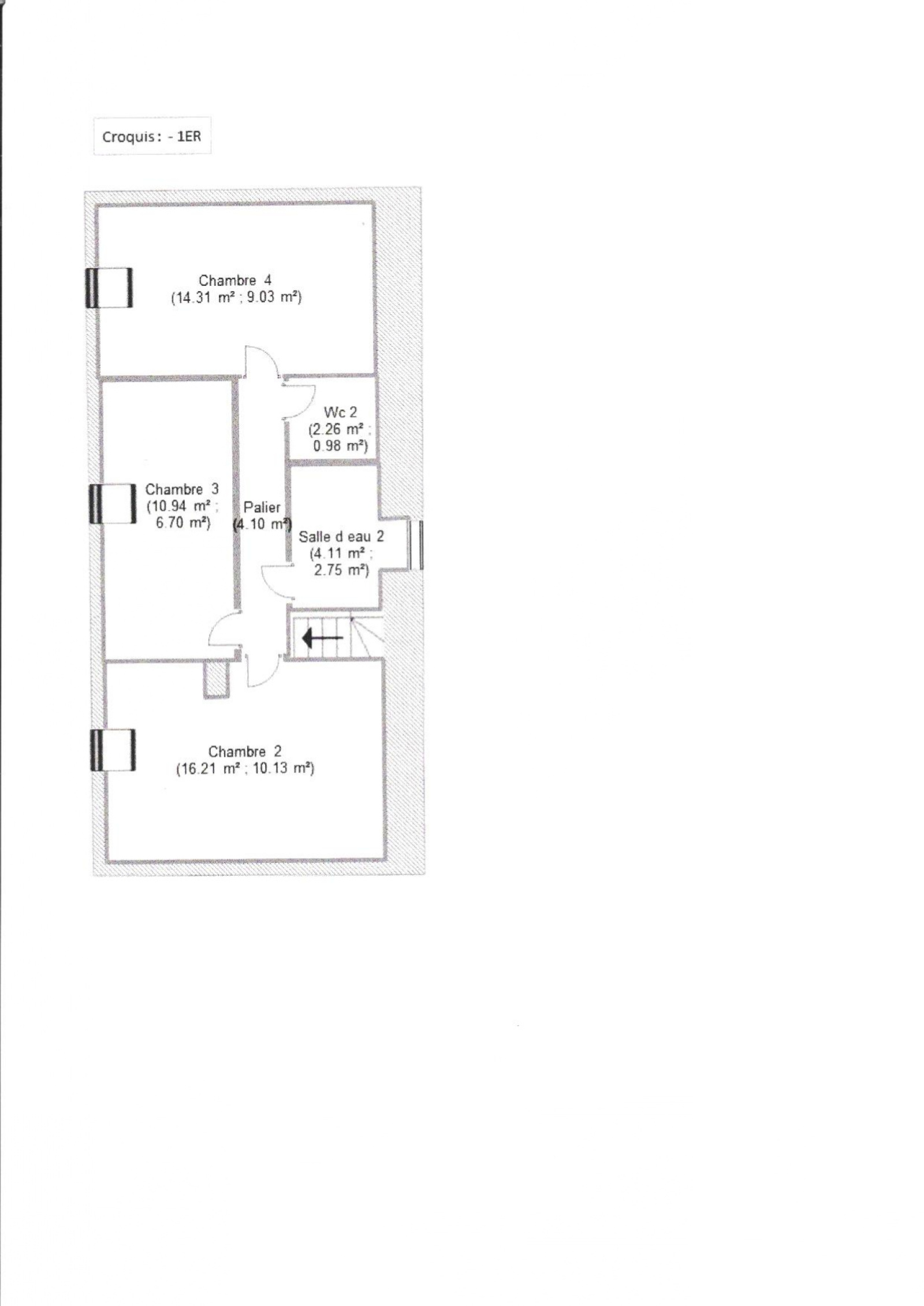
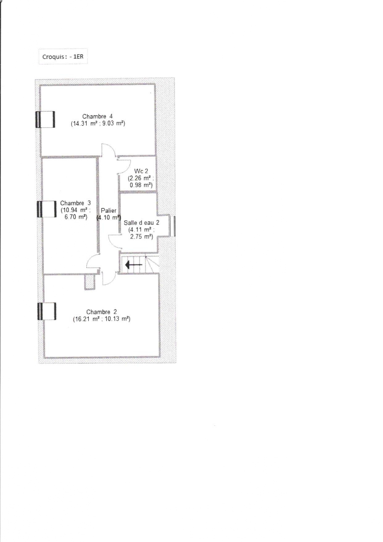
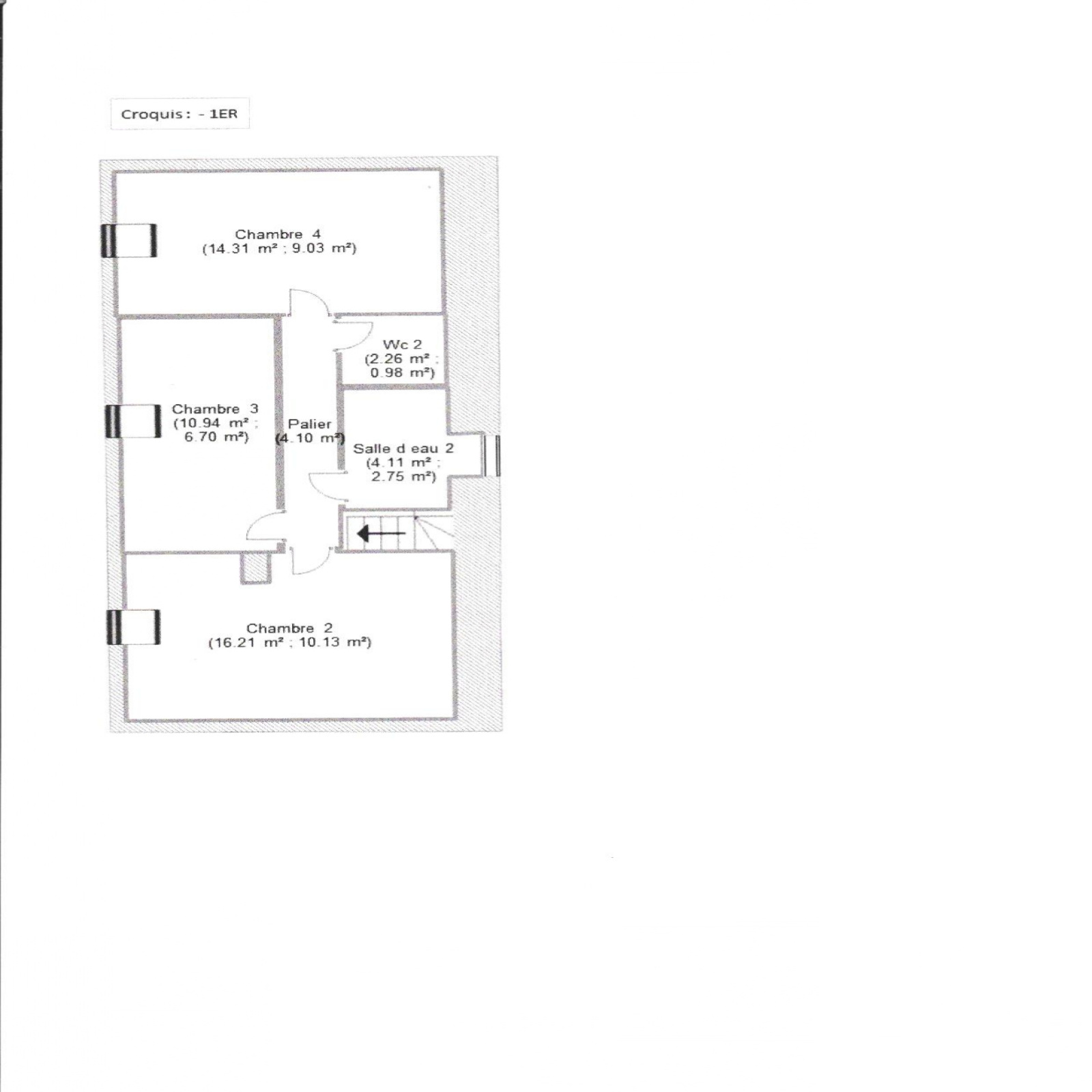
A l'étage, une salle de douche et 3 chambres

Il dispose également d'un garage, d'un bucher et d'un abri de jardin, le tout sur un terrain de 238m² donc avec peu d'entretien

Photos des chambres et salles de bains sur demande


Les informations sur les risques auxquels ce bien est exposé sont disponibles sur le site Géorisques : www.georisques.gouv.fr.

Prix : 299.000€
Honoraires charge vendeur
DPE C 143, réalisé le 2 décembre 2025

Bilan énergétique

Diagnostics énergetiques
A propos de ce bien Caractéristiques de ce bien
  • Surface 92,12 m²
  • carrez 92,12 m²
  • terrain 238 m²
  • séjour 23,11 m²
  • 4 chambre(s)
  • 2 salle(s) de bain
  • construit en 1996
  • cuisine séparée (équipée)
  • Chauffage individuel : radiateur (gaz de ville)
  • 1 garage(s)
  • 1 côté(s) mitoyen(s)
  • 2 niveau(x)

Financier

Informations financières
Prix de vente honoraires TTC inclus 299 000 €
Taxe foncière annuelle 1 800 €

Autour du bien

Découvrez le quartier

Simulation

Calcul des mensualités
* Champs obligatoires
Agence de Rang du Fliers Agence