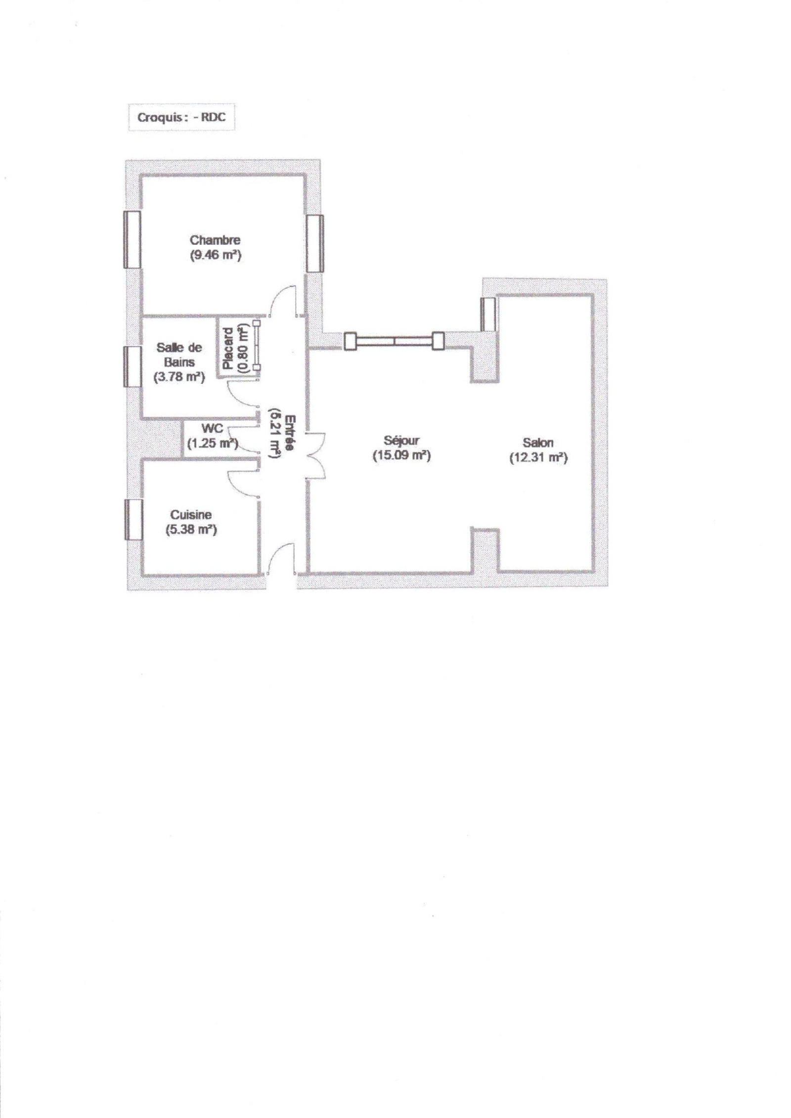
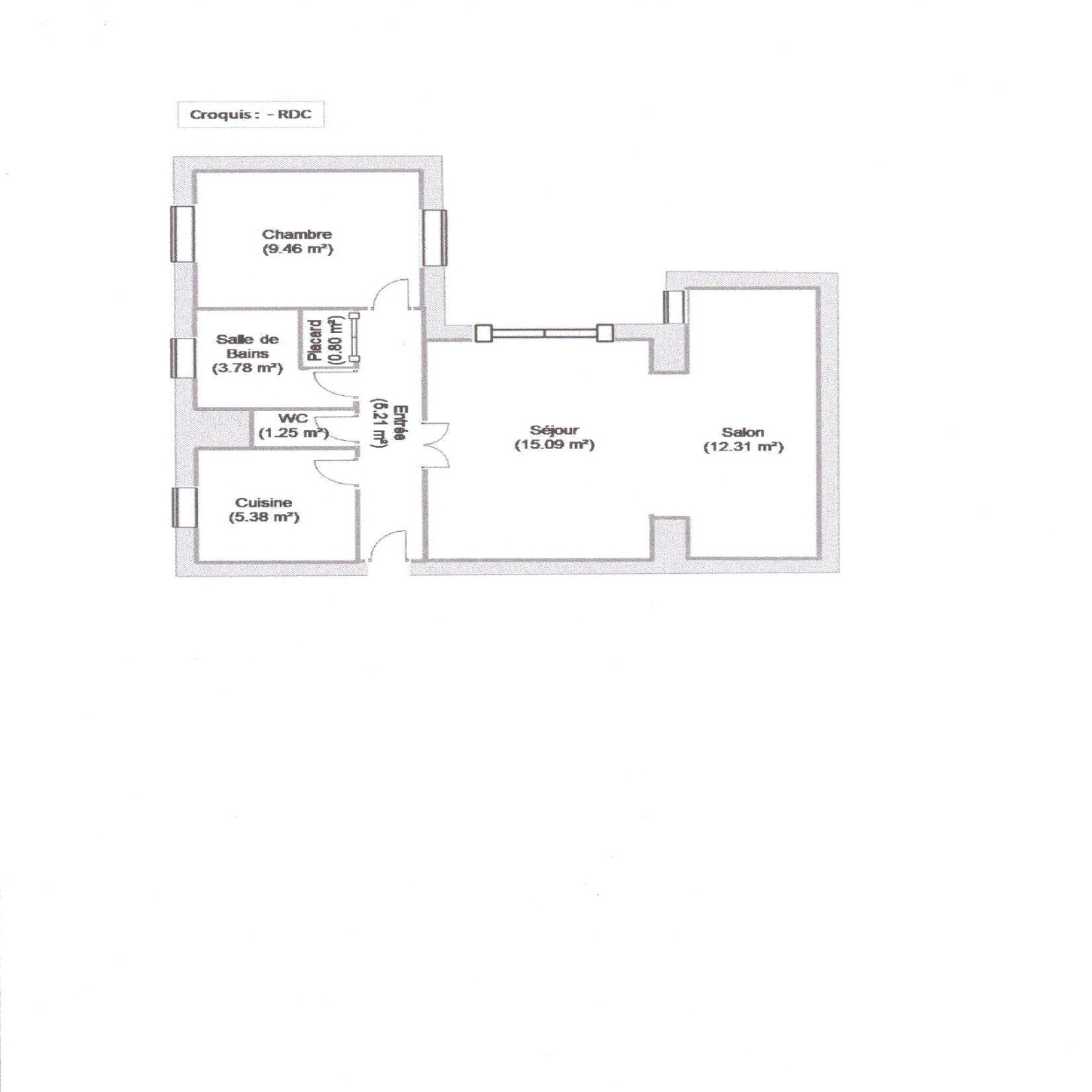
Appartement T2 en EXCLUSIVITÉ à BERCK PLAGE
Nous vous proposons à l'achat cet appartement de 53,28m².
Il nécessite certes un rafrachissement, maisl il se situe à 750 mètres de la plage, bénéficie d'une cave, d'une place de parking, et comme il se situe au rez de chaussée, d'une petite cour privée.
Il dispose d'une entrée, d'un salon, d'un séjour, d'une cuisine aménagée, d'une salle de bains avec baignoire et placard, et d'une chambre
Bien soumis au statut de la copropriété (90 lots)
Pas de procédure en cours
Charges annuelles environ 1300€uros
 
                 
                                         
                                         
                                         
                                         
                                         
                                         
                                         
                                         
                                         
                                         
                                     
                                     
                                     
                                     
                                     
                                     
                                     
                                     
                                     
                                     
                                 
                                 
                                 
                                 
                                 
                                 
                                 
                                 
                                 
                                 
             
                                                 
                                                