Page suivante
Page précédente
Rang-du-Fliers (62180)

Maison 6 pièce(s) 2 chambre(s) 57.94 m²

1
272 m²
3
119 000 €
Réf 131373

Chalet de plain-pied

Nous vous proposons à l'achat en EXCLUSIVITÉ cette maison en bois située dans un parc privé et sécurisé dans le triangle RANG DU FLIERS/BERCK/MERLIMONT

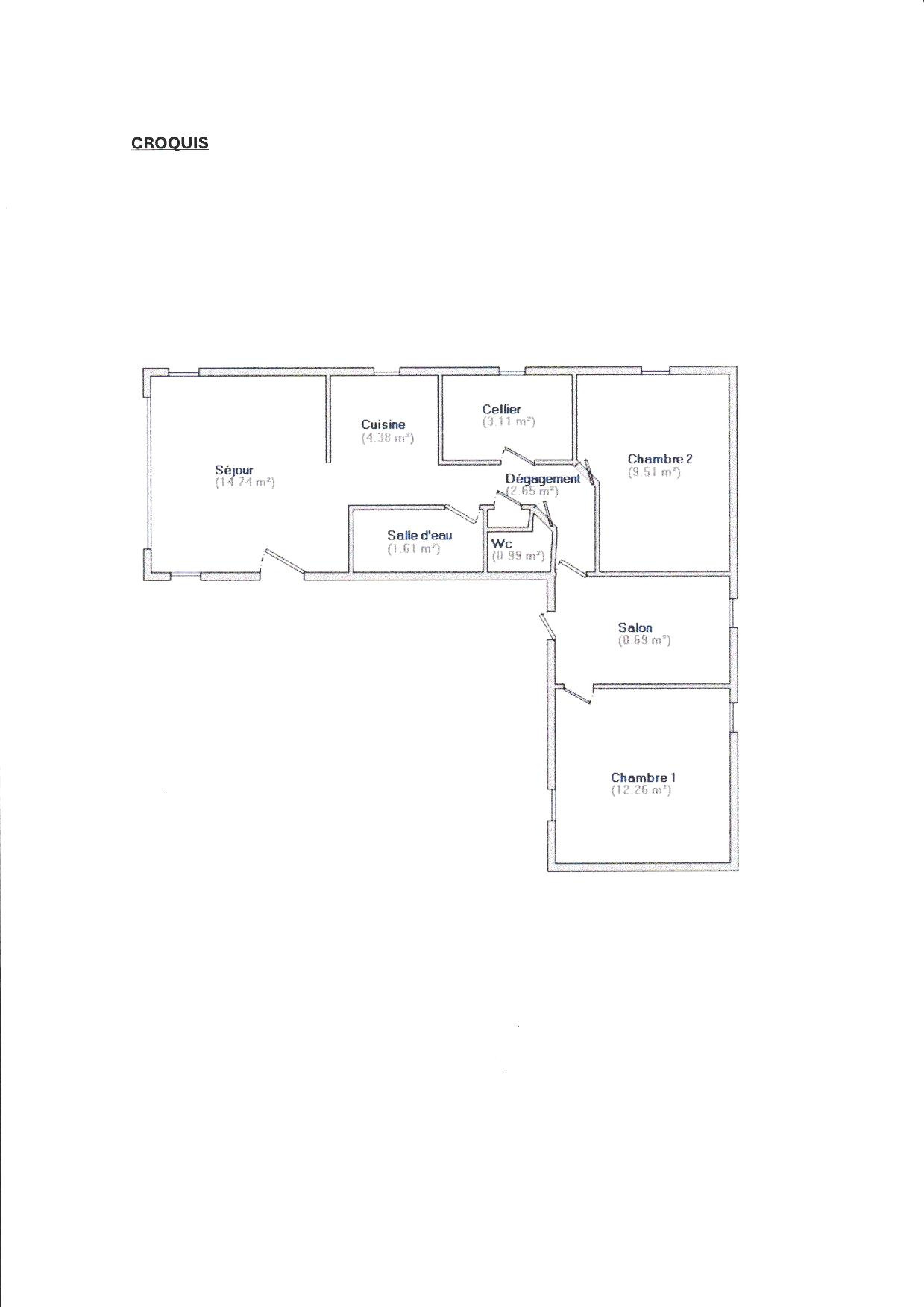
Il comprend en plain-pied un séjour, une cuisine équipée, un cellier, une salle de douche, un salon (ou bureau) et 2 chambres.

Il dispose également d'une terrasse et d'un abri de jardin, le tout sur une parcelle cloturée de 272m²

Rafraichissement extérieur à prévoir 

Autres photos sur demande

Les informations sur les risques auxquels ce bien est exposé sont disponibles sur le site Géorisques : www.georisques.gouv.fr.

Prix : 119.000€
Honoraires charge vendeur
DPE E 326, réalisé le 20 novembre  2025

Bien situé dans une copropriété horizontale avec 246 lots d'habitation - charges annuelles environ 400€uros

L'Agence de Rang du Fliers, membre du réseau AICO : 1 mandat exclusif = 7 agences à votre service

Bilan énergétique

Diagnostics énergetiques
A propos de ce bien Caractéristiques de ce bien
  • Surface 57,94 m²
  • carrez 57,94 m²
  • terrain 272 m²
  • séjour 15 m²
  • 2 chambre(s)
  • 1 salle(s) de bain
  • construit en 1980
  • cuisine séparée (équipée)
  • Chauffage individuel : radiateur (electrique)
  • 1 niveau(x)
  • terrasse

Financier

Informations financières
Prix de vente 119 000 € Les honoraires d'agence seront intégralement à la charge du vendeur
Taxe foncière annuelle 539 €

Autour du bien

Découvrez le quartier

Simulation

Calcul des mensualités
* Champs obligatoires
Agence de Rang du Fliers Agence