Page suivante
Page précédente
Verton (62180)

Terrain a batir

70 000 €
Réf 5016

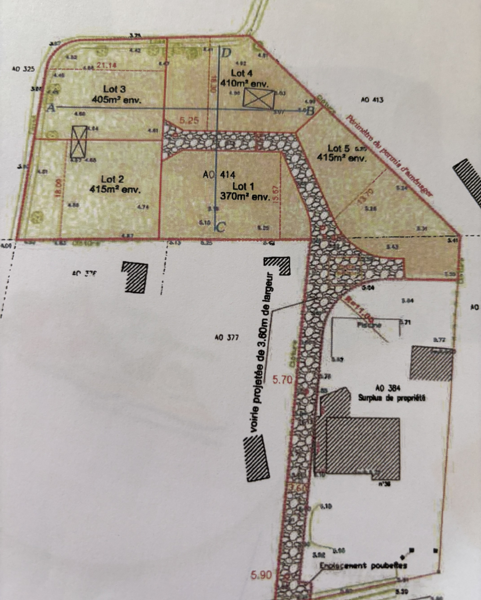
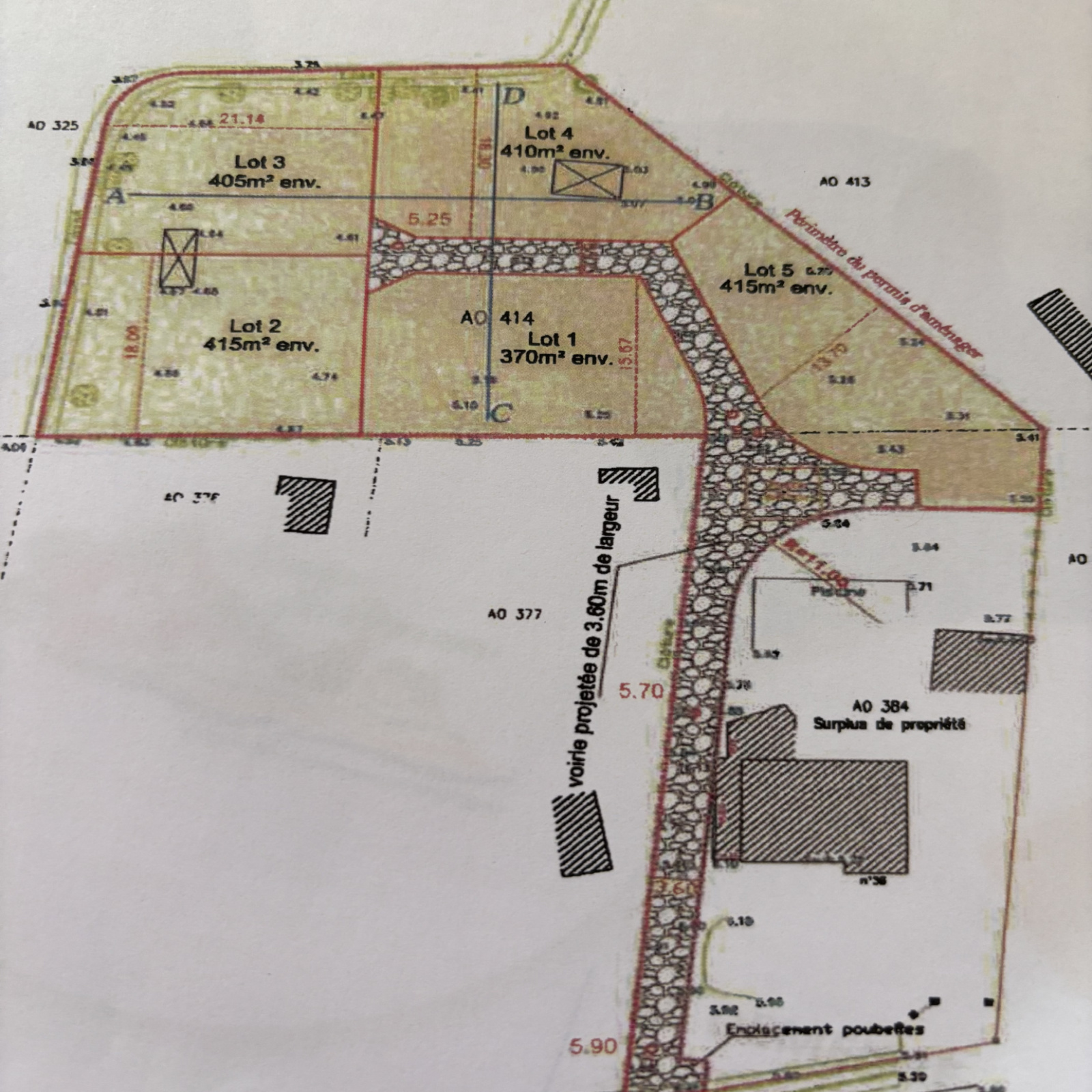
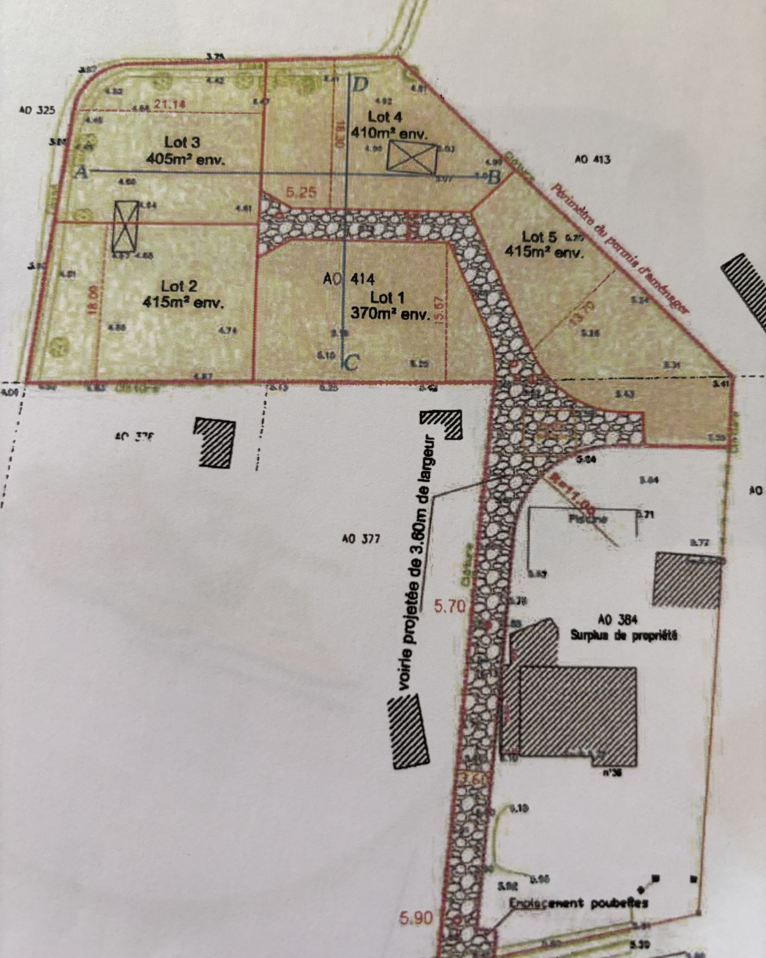
Sur la commune de Verton, dans secteur recherché en second rideau et en bordure de champs, nous vous proposons ce terrain constructible (lot n°2 de 415m²)

Viabilisé ( eau - électricité - fibre - tout à l'égout ).

LOTISSEMENT DE 5 LOTS - LIBRE DE CONSTRUCTEUR ( RESTE le lot 2 - 3 -4 ) surface plancher maximale de 250m²

La voirie de 3.60 m sera en indivision entre les acquéreurs des 5 lots. (réalisation de celle ci en gravillons)

La chaussée sera constituée : d'une toile anti-contaminante, d'un tout venant sur 0.30 m et de gravillons sur 0.05 m

Les informations sur les risques auxquels ce bien est exposé sont disponibles sur Géorisques.gouv.fr

Honoraires charge vendeur inclus.

Bilan énergétique

Diagnostics énergetiques
A propos de ce bien Caractéristiques de ce bien
  • terrain 415 m²

Financier

Informations financières
Prix de vente 70 000 € Les honoraires d'agence seront intégralement à la charge du vendeur

Autour du bien

Découvrez le quartier

Simulation

Calcul des mensualités
* Champs obligatoires
AGENCE LA DEMEURE Agence