Page suivante
Page précédente
Verton (62180)

Maison 5 pièce(s) 3 chambre(s) 83.84 m²

1
843 m²
1
Réf 131302

Trop tard : nous avons trouvé un acquéreur pour ce bien !


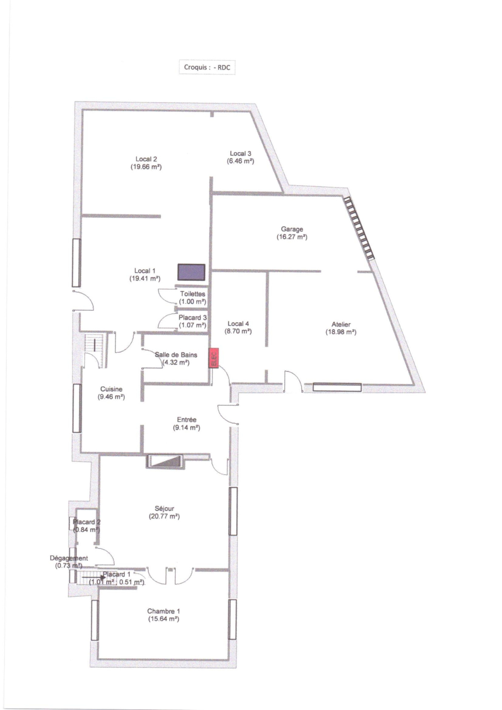
Des travaux à prévoir, mais un gros potentiel pour cette maison individuelle située à VERTON en EXCLUSIVITÉ

Elle dispose actuellement de 3 chambres, d'une cave, d'un garage, d'un atelier et de dépendances, le tout sur environ 800m²

Elle est équipée du chauffage au fuel et du tout à l'égout

Les informations sur les risques auxquels ce bien est exposé sont disponibles sur le site Géorisques : www.georisques.gouv.fr.

Prix : 127.200€
Honoraires charge vendeur
DPE réalisé le 31 mai 2024

L'Agence de Rang du Fliers, membre du réseau AICO : 1 mandat exclusif = 8 agences à votre service

Bilan énergétique

Diagnostics énergetiques
A propos de ce bien Caractéristiques de ce bien
  • Surface 83,84 m²
  • carrez 83,84 m²
  • terrain 843 m²
  • séjour 20,77 m²
  • 3 chambre(s)
  • 1 salle(s) de bain
  • construit en 1930
  • cuisine séparée
  • Chauffage individuel : radiateur (fioul)
  • 1 garage(s)
  • 2 niveau(x)
  • terrasse
  • arboré

Financier

Informations financières
Taxe foncière annuelle 1 191 €

Autour du bien

Découvrez le quartier

Simulation

Calcul des mensualités
* Champs obligatoires
Agence de Rang du Fliers Agence