Page suivante
Page précédente
Verton (62180)

Maison 6 pièce(s) 3 chambre(s) 170 m²

2
8420 m²
1
Réf 131328

Trop tard : nous avons trouvé un acquéreur pour ce bien

Grand pavillon individuel des années 80 à Verton, proche de Berck !

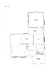
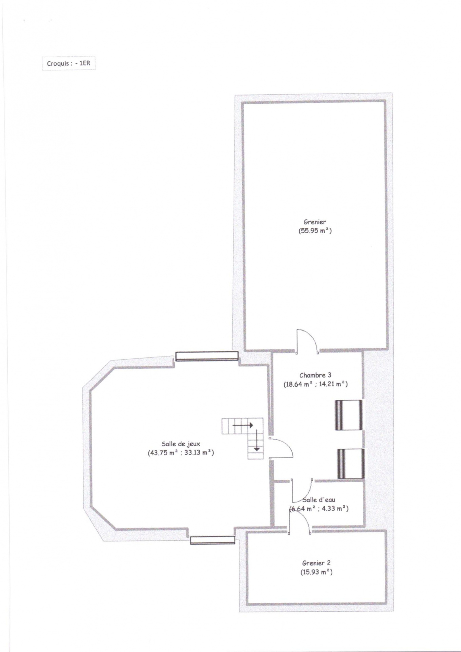
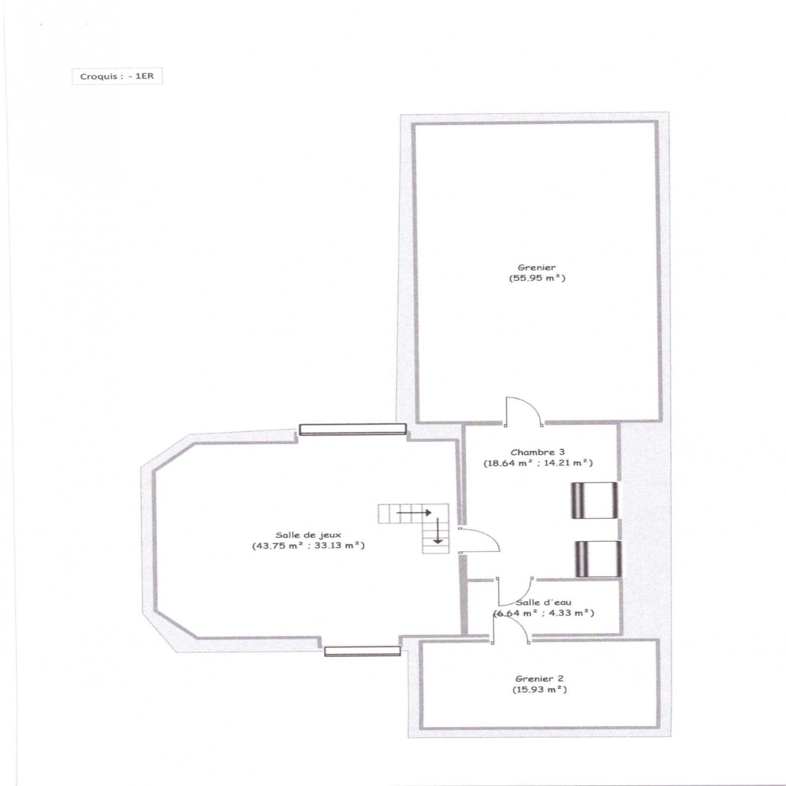
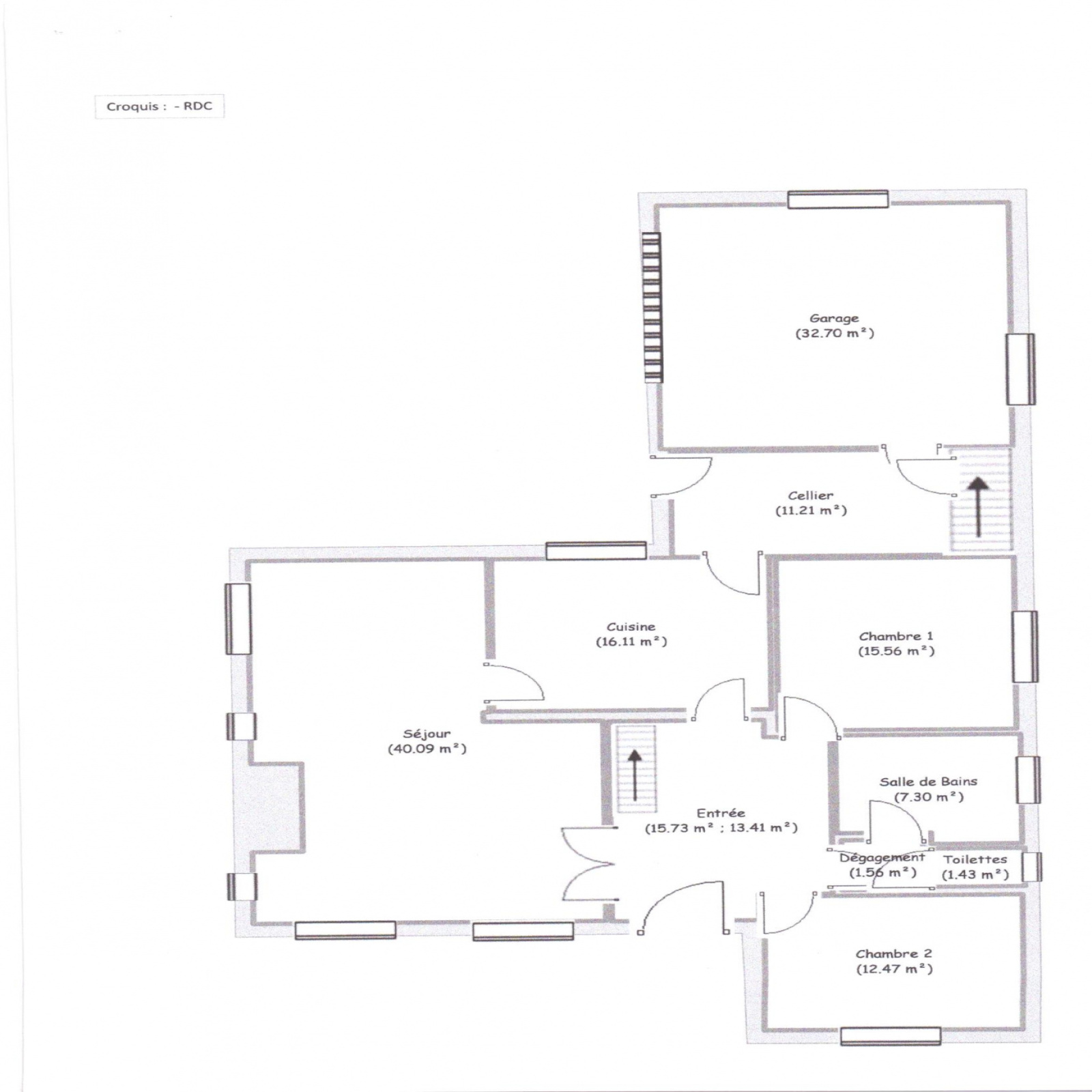
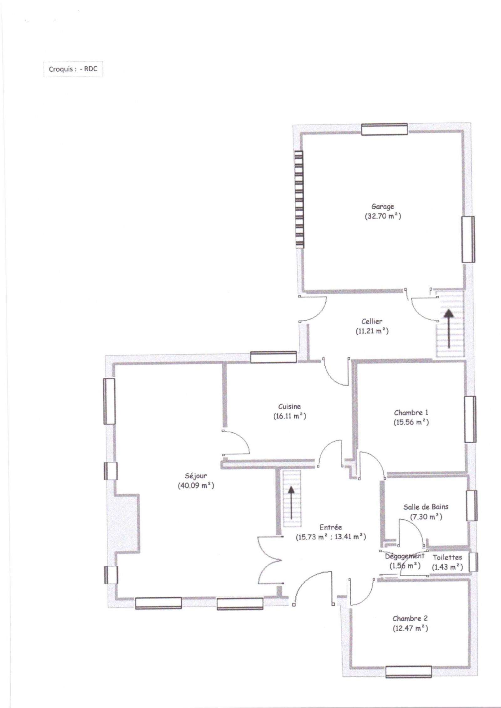
Vous cherchez de l'espace ? Cette maison de 170 m² sur un terrain de 8420 m² est faite pour vous ! Avec un séjour de 40m² avec cheminée, une cuisine séparée équipée de 16m², 3 grandes chambres, 2 salles d'eau, un grenier immense, une salle de jeux spacieuse, un grand garage, et des dépendances, il y a de quoi satisfaire toute la famille (et même les amis envahissants) !

Ne tardez pas, c'est une opportunité unique pour les amateurs de grands espaces !

Les informations sur les risques auxquels ce bien est exposé sont disponibles sur le site géorisques : www.georisques.gouv.fr

AICO (Agences Immobilières en Côte d'Opale) : 1 mandat exclusif = 7 agences à votre service

Bilan énergétique

Diagnostics énergetiques
A propos de ce bien Caractéristiques de ce bien
  • Surface 170 m²
  • carrez 170,81 m²
  • terrain 8 420 m²
  • séjour 40,09 m²
  • 3 chambre(s)
  • 2 salle(s) de bain
  • construit en 1980
  • cuisine séparée (équipée)
  • Chauffage individuel : radiateur (electrique)
  • 1 garage(s)
  • 2 niveau(x)
  • arboré

Financier

Informations financières
Taxe foncière annuelle 2 500 €

Autour du bien

Découvrez le quartier

Simulation

Calcul des mensualités
* Champs obligatoires
Agence de Rang du Fliers Agence