Stella (62780)

Maison 3 pièce(s) 2 chambre(s) 78.2 m²

1
1
210 m²
265 900 €
Réf 642bisMB

RARE ! maison située au coeur de la station de Stella-Plage !

Comprenant; Au rez-de-chaussée salon séjour avec cuisine américaine meublée et équipée donnant sur terrasse extérieure suspendue à l'arrière de la maison et d'une terrasse avec un jardinet sur le devant côté centre ville.

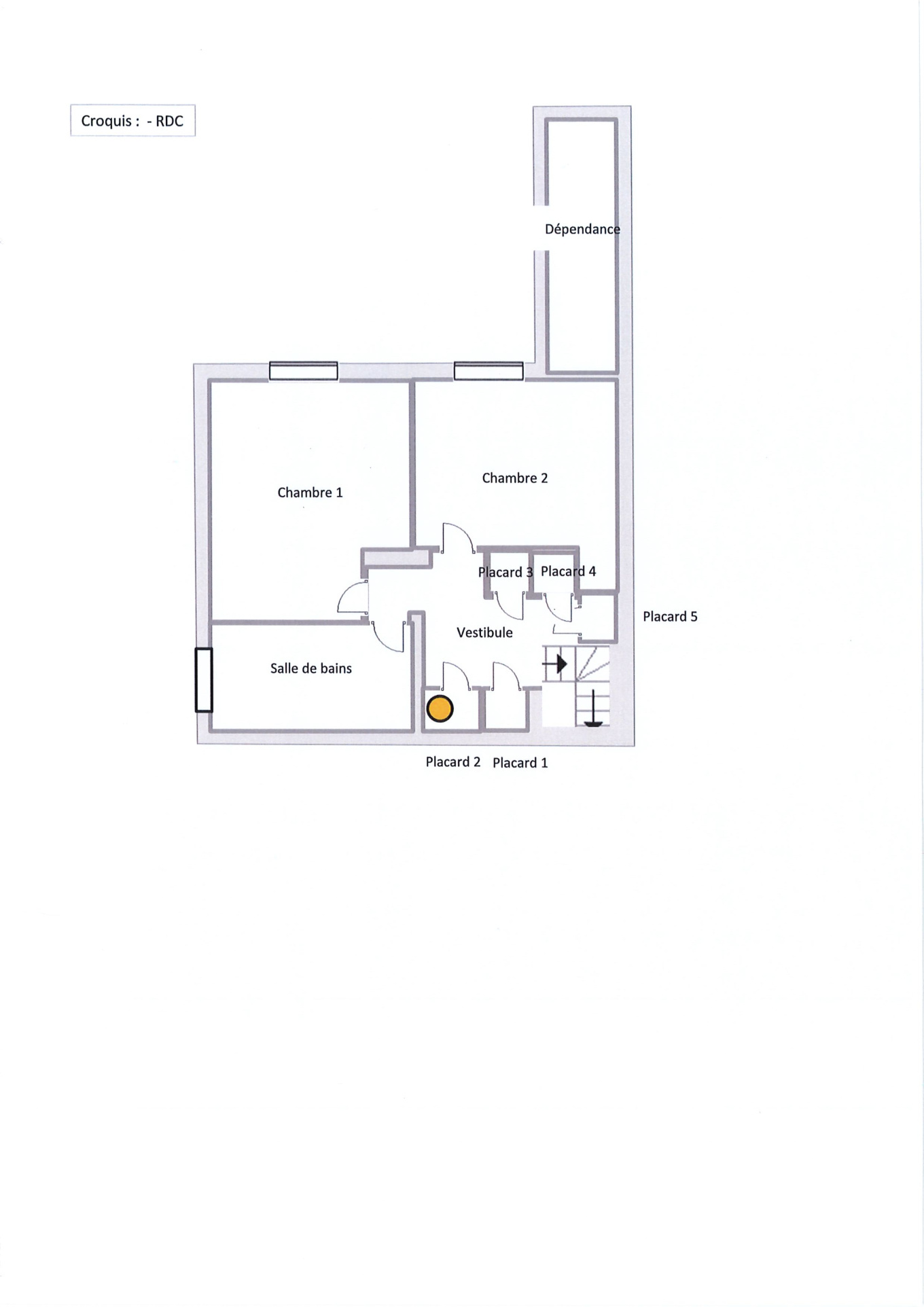
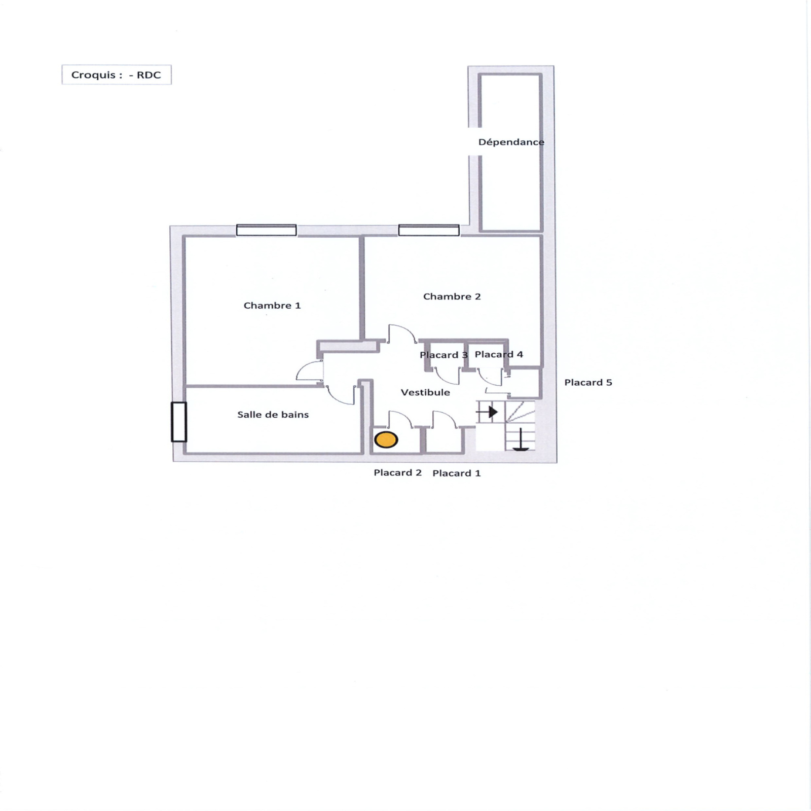
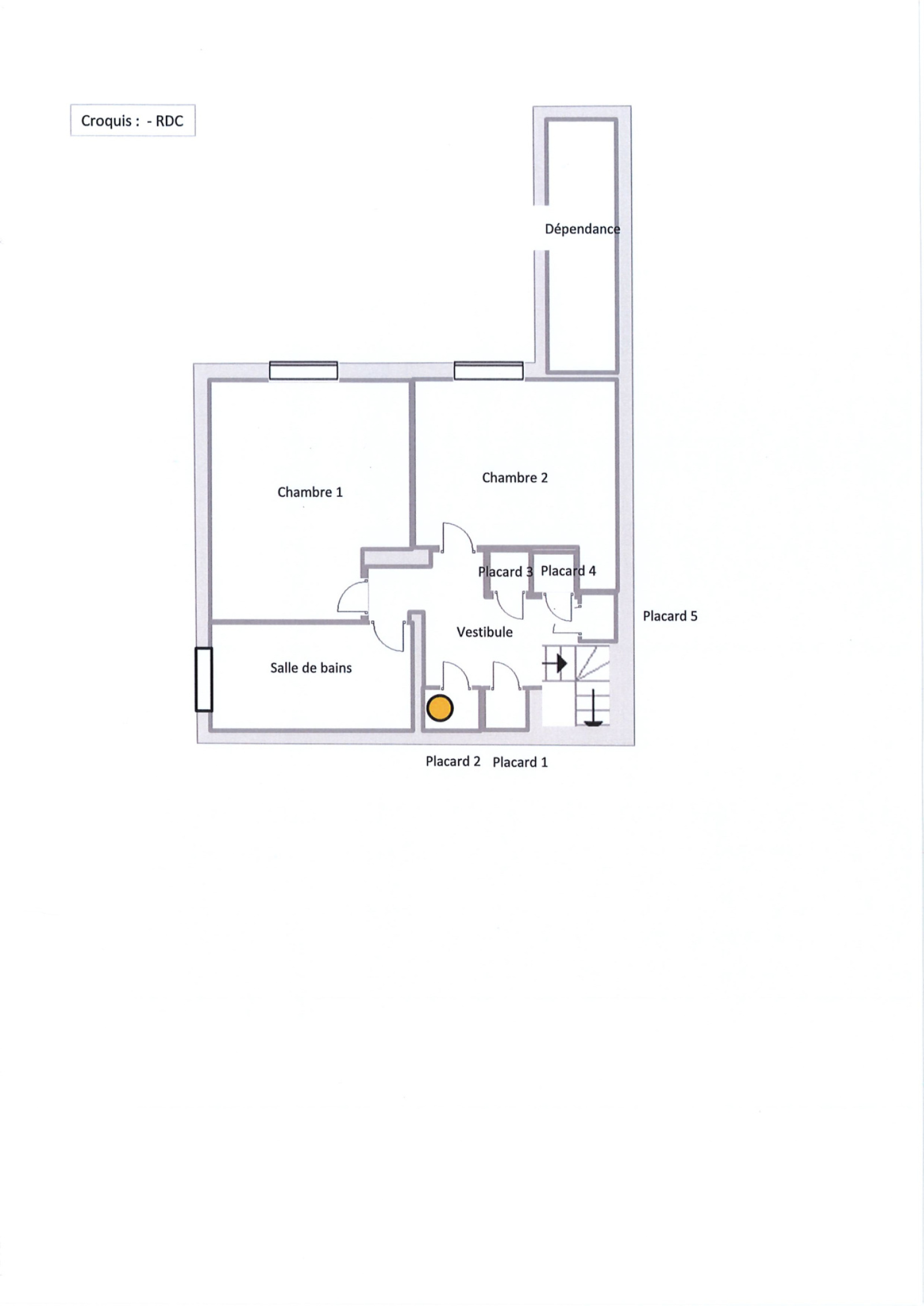
Au niveau -1 : Dégagement avec de nombreux placards, 2 chambres, salle de bains avec baignoire et douche.

Par ailleurs; Cellier, jardin avant, arrière.

Jardin d' environ 210m² clôturé avec portail coulissant.

Ce bien est en copropriété de terrain de 2 lots.

Chauffage électrique et poêle à bois. Menuiseries PVC double vitrage avec volets électrique.

Etat des risques visibles sur le site www.georisques.gouv.fr

Conatctez-nous au 03 21 94 60 65 pour tout renseignement complémentaire ou pour un rendez-vous de visite.

Bilan énergétique

Diagnostics énergetiques
A propos de ce bien Caractéristiques de ce bien
  • Surface 78,20 m²
  • carrez 78,20 m²
  • terrain 210 m²
  • séjour 33 m²
  • 2 chambre(s)
  • 1 salle(s) de bain
  • 1 salle(s) d'eau
  • construit en 1960
  • cuisine américaine (équipée)
  • exposition Sud
  • 2 niveau(x)
  • quartier A 5 min du Touquet, STELLA-PLAGE

Info copro

Copropriété
  • Copropriété Oui
  • Lot n° 2
  • Nombre de lots 2
  • Statut du syndic Pas de procédure en cours

Financier

Informations financières
Prix de vente honoraires TTC inclus 265 900 €
Taxe foncière annuelle 457 €

Autour du bien

Découvrez le quartier

Simulation

Calcul des mensualités
* Champs obligatoires
Agence du Golf Agence