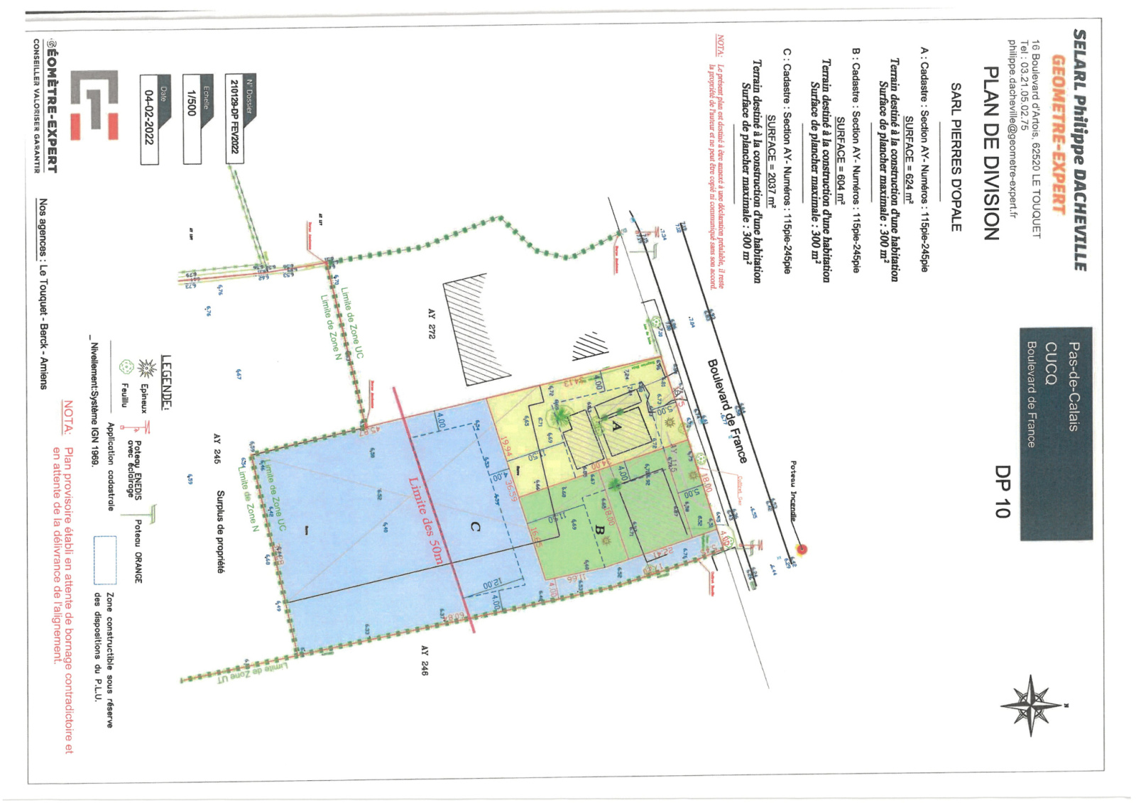
Terrain d'une superficie de 6321 m² dont 2037 m² constructibles.
Façade de 36 mètres, exposé plein Sud.
Le terrain est situé boulevard de France, à CUCQ/STELLA-PLAGE, zone UC du PLU.
Terrain vendu borné. Chemin d'accès arboré avec réseaux en attente.
FRAIS DE NOTAIRE REDUITS ( 8 800,00 €).
Honoraires charge vendeur inclus.
Les informations sur les risques auxquels ce bien est exposé sont disponibles sur le site Géorisques : www.georisques.gouv.fr.
 
                 
                                         
                                         
                                         
                                         
                                         
                                         
                                     
                                     
                                     
                                     
                                     
                                     
                                 
                                 
                                 
                                 
                                 
                                 
             
                                                