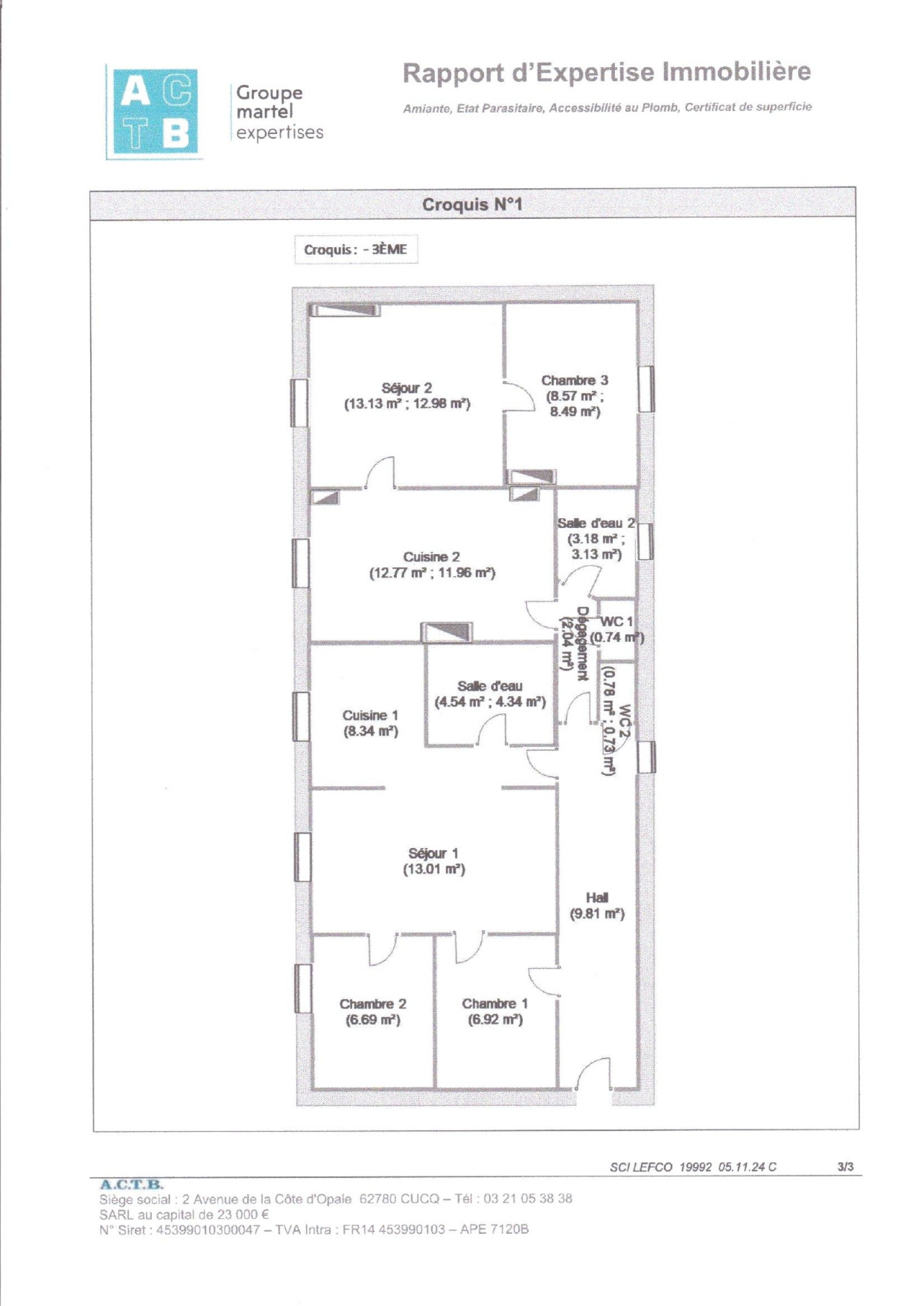
Nous vous proposons à l'achat en plein coeur des commerces de BERCK PLAGE, cet appartement situé au 3ième étage d'une petite copropriété.
D'une superficie initiale d'environ 90m², il est actuellement divisé en 2 logements dont loué en location meublée (bail court).
Après travaux, vous aurez la possiblité de louer les 2 appartements ou de profiter d'un grande surface à proximité de la plage
Les informations sur les risques auxquels ce bien est exposé sont disponibles sur le site Géorisques : www.georisques.gouv.fr
AICO (Agences Immobilières en Côte d'Opale) : 1 mandat exclusif = 7 agences à votre service
 
                 
                                         
                                         
                                         
                                         
                                         
                                         
                                         
                                         
                                         
                                         
                                     
                                     
                                     
                                     
                                     
                                     
                                     
                                     
                                     
                                     
                                 
                                 
                                 
                                 
                                 
                                 
                                 
                                 
                                 
                                 
             
                                                 
                                                